Property Description

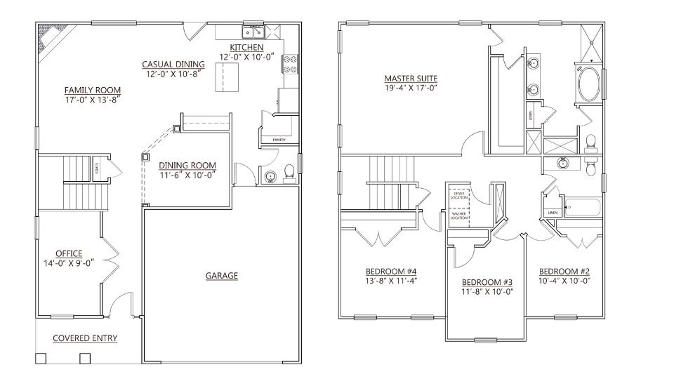
Check out 120 Stratter Drive, a stunning new home in our Rutledge Estates community! This thoughtfully designed two-story home features four bedrooms, two and a half bathrooms, and a two-car garage. With its flexible layout and modern flow, this home is perfect for both everyday living and entertaining. From the covered entry, step into a welcoming foyer that leads to a dedicated office and a formal dining room. The kitchen includes modern appliances, a pantry, and a large island that overlooks the casual dining area and living room, creating an open and connected space for gatherings of any size. Upstairs, the primary suite provides a relaxing retreat with a spacious bathroom featuring dual vanities, a soaking tub, a separate shower, and a walk-in closet. Three additional bedrooms and a full bathroom are also located on the second floor, along with a conveniently placed laundry area. With its comfortable design, open living areas, and thoughtful details throughout, this home blends modern style with everyday functionality. Pictures are representative.

📊 Property Details

  • Property Type: Residential
  • Living Area: 4,732 sq ft
  • Year Built: 2026

📍 Property Location

Full Address: 120 Stratter Drive

City: Woodruff

State: SC

ZIP Code: 29388

Information deemed reliable but not guaranteed. Courtesy of MLS Grid.

Last Updated: March 22, 2026