Property Description

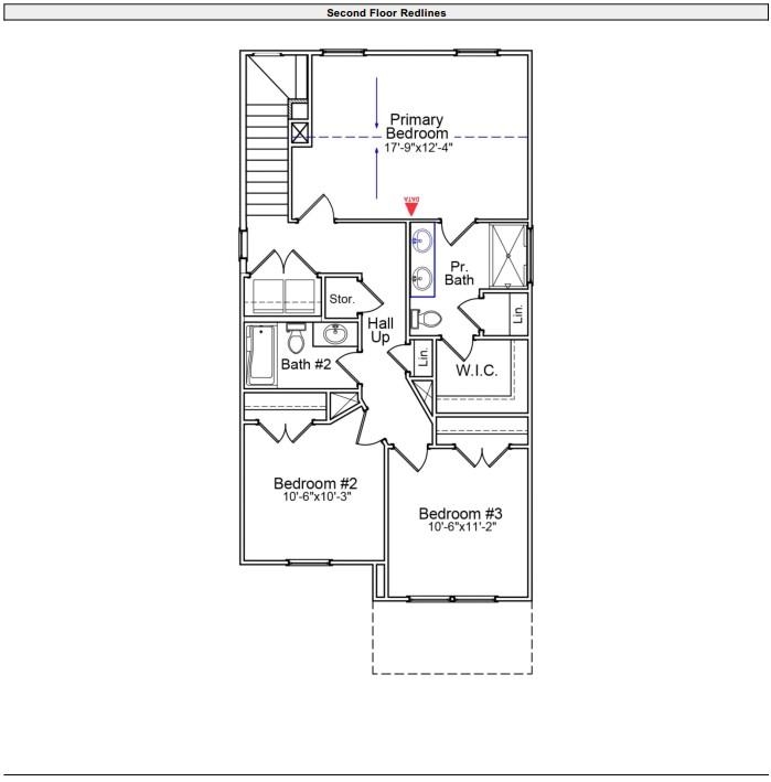
The Bartow plan offers the perfect blend of space and comfort. This thoughtfully designed two-story home features three bedrooms and two-and-one-half bathrooms. Step inside and you'll be greeted by luxury vinyl plank flooring that can be found throughout the entire 1st floor. The open layout includes a spacious kitchen with an adjacent dining area that flows into the great room, ideal for everyday living and entertaining. The kitchen comes equipped with White Shaker Style Cabinets, Quartz countertops, and Stainless-Steel Appliances. The primary suite comes with a Vaulted Ceiling and a private bath which has a 5ft shower, dual bowl vanity, and Walk-In-Closet. Two additional bedrooms share a full bath nearby. The laundry room is conveniently located upstairs along with a storage and linen closet.

📊 Property Details

  • Property Type: Residential
  • Living Area: 1,476 sq ft
  • Year Built: 2026

📍 Property Location

Full Address: 2329 Mill Loop

City: Spartanburg

State: SC

ZIP Code: 29301

Information deemed reliable but not guaranteed. Courtesy of MLS Grid.

Last Updated: March 23, 2026