Property Description

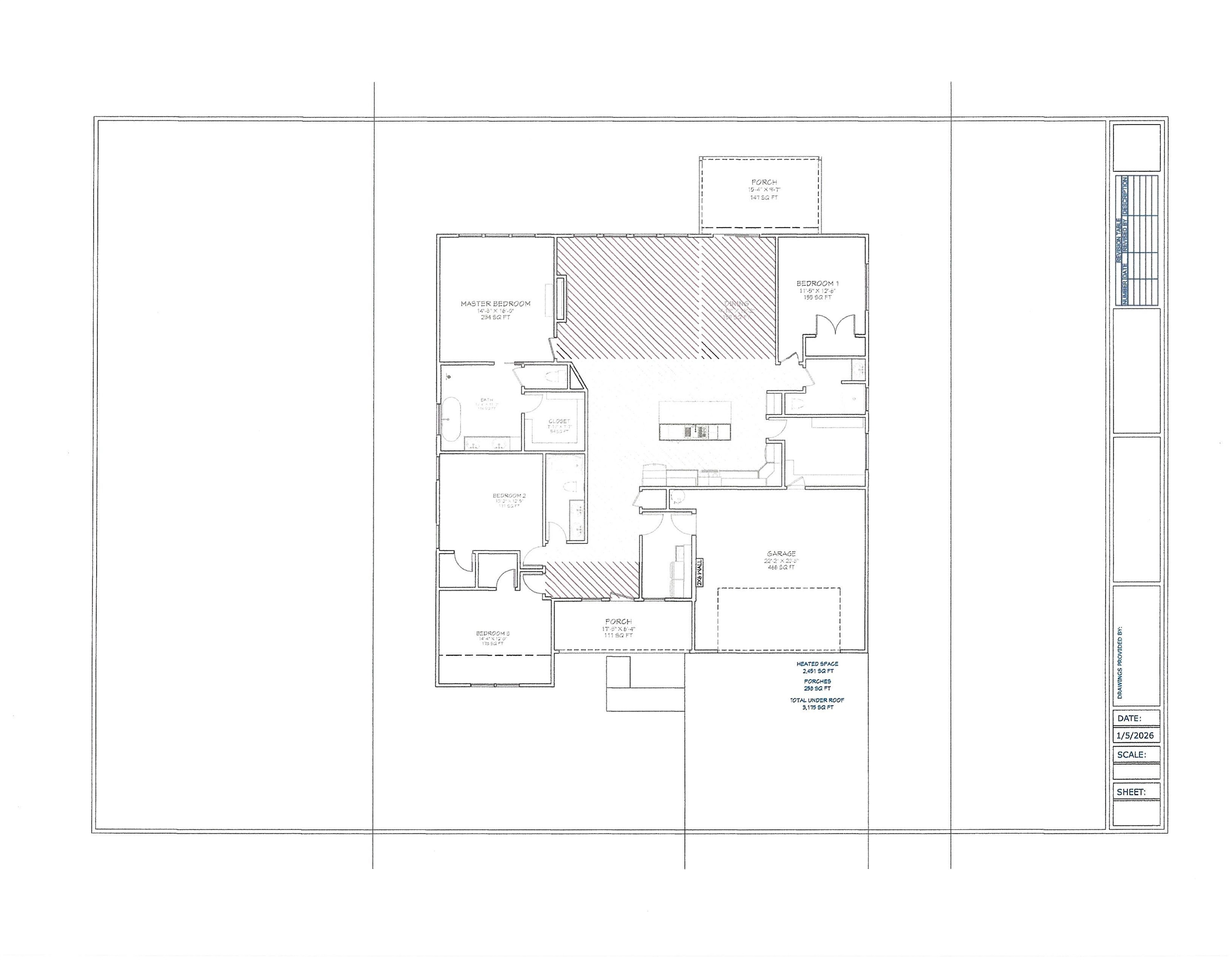
Woozier!!!! This home is going to be a show stopper!! Over 2450 heated sqft on one level! Four super nice size bedrooms, three full baths, beautiful laundry room w/ a wet sink, and plenty of room to move about. This home is gorgeous! As you enter the front door...the 10 ft ceiling will blow you away! Open concept of living. Secondary bedroom upfront with a tub/shower bath, double vanity! Great-room is BIG!! Open to the dining area and stunning kitchen with an oversized island! The pantry itself is super cool. Once you open the door you will be like WOW what a pantry! Also has a door that opens to the garage for the convenience of carrying your groceries in. Owner suite is BIG!! Private bath features a soaking tub, super nice tile shower and floor, water closet, and plenty of room to move around. The 4th bedroom could be an in-law suite, guest room...it's private! Covered back porch. Lots of upgrades!! If you call soon...you may have time to pick colors!! Add your personal touch!

📊 Property Details

  • Property Type: Residential
  • Living Area: 2,451 sq ft
  • Year Built: 2026

📍 Property Location

Full Address: 219 Artisan Drive

City: Lyman

State: SC

ZIP Code: 29365

Information deemed reliable but not guaranteed. Courtesy of MLS Grid.

Last Updated: March 25, 2026