Property Description

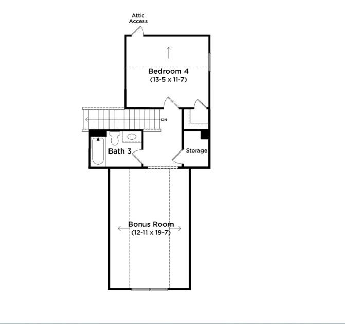
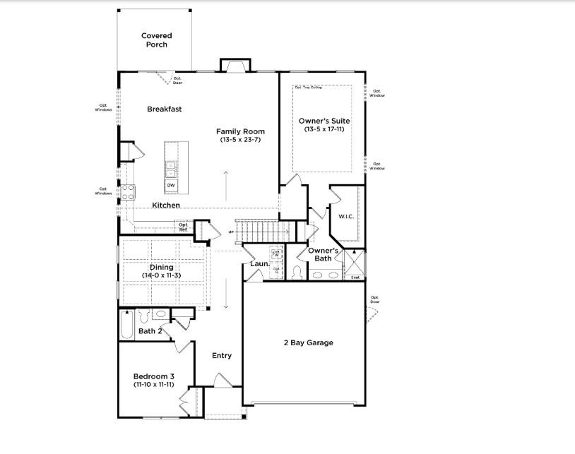
Home is Move in Ready! Welcome to Iris Meadows, where your dreams of summer fun and luxury living will come to life! Enjoy first-class amenities, including a community pool and relaxing cabana.** * Ranch Syle Living* * Location close to 290* * Versatile Multi Use Room** The Cooper 3 home is a versatile, ranch-style home offering comfortable living spaces with flexible design options. As you enter into your spacious entry hall, you have a bedroom and bath along with a formal dining room featuring coffered ceilings adjacent to the foyer. The open-concept design includes a spacious kitchen with an oversized island with sink, perfect for cooking and entertaining, beautiful white cabinetry, granite countertops, a tiled backsplash, under cabinet lighting and stainless steel gas appliances. It overlooks the breakfast area and family room, creating a seamless flow between the spaces. The living room features high ceilings, tall windows for lots of natural light and a cozy gas fireplace. Off the breakfast room is a covered back porch with ceiling fan that looks out onto your backyard making it a perfect place for those get togethers. The Primary Suite is situated off the living room and features double vanities, walk in closet and beautiful tiled shower with seat and glass door. Up the Oak staircase you have an additional bedroom with full bath along with a huge multi use room perfect for a home office or game room. Smart home technology, energy-efficient construction, and a dedicated local warranty team ensure lasting convenience and comfort. Located in Moore, SC, Iris Meadows offers a pool, cabana, and craftsman-style homes. With easy access to I-26 and I-85, shopping, dining, and entertainment, and zoning for sought-after Spartanburg District 5 Schools, this community is the perfect place to call home. Come by today for your personal tour and make Iris Meadows your new home.

📊 Property Details

  • Property Type: Residential
  • Living Area: 2,385 sq ft
  • Year Built: 2026

📍 Property Location

Full Address: 759 Rodin Road

City: Moore

State: SC

ZIP Code: 29369

Information deemed reliable but not guaranteed. Courtesy of MLS Grid.

Last Updated: May 14, 2026