Property Description

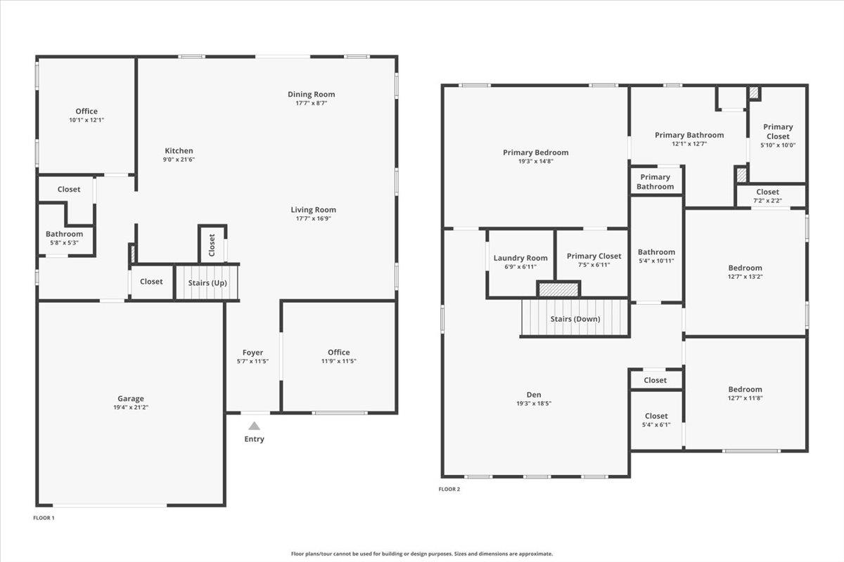
Welcome to 6059 Ives Ave, Spartanburg, SC 29307! Over 60k in builder upgrades and on a premium lot. Tucked away in a peaceful residential neighborhood, this beautifully designed Hudson floorplan combines modern elegance with everyday functionality—no need to wait for new construction when this upgraded gem is ready now. Step inside to find a bright, open layout with two spacious living areas: a main living room and an upstairs loft—ideal for movie nights, play space, or a second lounging zone. The home features 3 bedrooms with a 4th bedroom downstairs that could be used as an office or bedroom and 2 bathrooms, plus a front office with an additional flex space and a main-level office that could easily serve as a 4th bedroom. Many options available with the floor plan. The heart of the home is the gourmet kitchen, complete with a gas stove, double oven, quartz countertops, soft-close cabinets and drawers, and a generous island perfect for prepping and gathering. Enjoy the benefits of a tankless water heater, gas heat, zoned HVAC system, and countless thoughtful upgrades throughout. Step outside to a covered back patio overlooking a private, unobstructed view—no homes behind you—just serene, open skies and natural surroundings. It’s an ideal spot for relaxing evenings or quiet mornings. Conveniently located near Publix at Hillcrest Shopping Center, Starbucks, and local favorites like Sugar-N-Spice, with the Cottonwood Trail just minutes away for outdoor adventure. Plus, with easy access toI-85 and downtown Spartanburg, everything you need is within reach. Don’t miss this fully finished, thoughtfully upgraded Hudson floor plan in one of Spartanburg’s most desirable areas—schedule your private tour today!

📊 Property Details

  • Property Type: Residential
  • Living Area: 2,744 sq ft
  • Year Built: 2023

📍 Property Location

Full Address: 6059 Ives Avenue

City: Spartanburg

State: SC

ZIP Code: 29307

Information deemed reliable but not guaranteed. Courtesy of MLS Grid.

Last Updated: April 02, 2026