Property Description

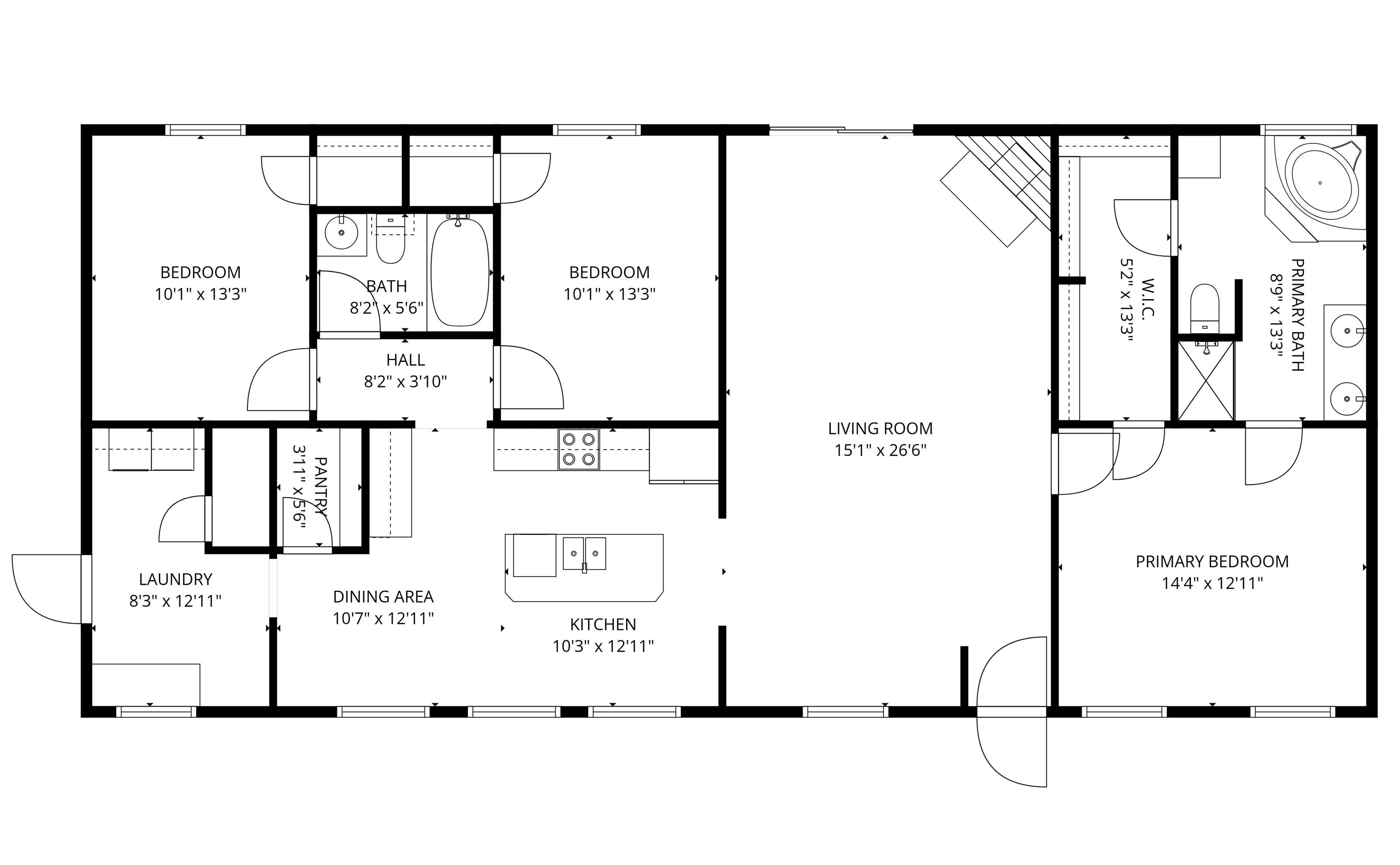
Discover peaceful, country, living with plenty of room to spread out on this 6.53+/- acre property. This three-bedroom, two-bathroom Clayton Home provides a comfortable split-bedroom layout that makes daily life easy and convenient. Inside, youโ€™ll find an open living area that connects naturally to the kitchen and dining space, creating a relaxed setting for meals, conversation, and quiet evenings at home. Enjoy decorating for the holidays in the spacious living area which includes a brick fireplace that is perfect for your favorite garland and lights. The Kitchen features a spacious center island and plenty of counter space for cooking, baking, or entertaining. All appliances convey, including the refrigerator, stove, washer, and drive. The spacious primary suite sits on one side of the home for added privacy, and includes a dreamy walk-in closet, and an en-suite bathroom with a garden tub and walk-in shower. The additional two bedrooms and full bath are tucked away on the opposite side of the kitchen area, ensuring restful evenings. A fenced yard provides a secure area for pets or gardening and the level lot gives you endless possibilities to start a hobby farm, or simply enjoy the wide-open setting. This property is conveniently located, just minutes from everyday amenities and quick access to the interstate. Whether you're looking for room to grow, land to enjoy, or a peaceful retreat that doesnโ€™t sacrifice convenience, this property brings it all together. Home has been de-titled. Schedule your showing today!

๐Ÿ“Š Property Details

  • Property Type: Residential
  • Living Area: 1,680 sq ft
  • Year Built: 1999

๐Ÿ“ Property Location

Full Address: 539 Sparrow Road

City: Clinton

State: SC

ZIP Code: 29325

Information deemed reliable but not guaranteed. Courtesy of MLS Grid.

Last Updated: December 13, 2025