Property Description

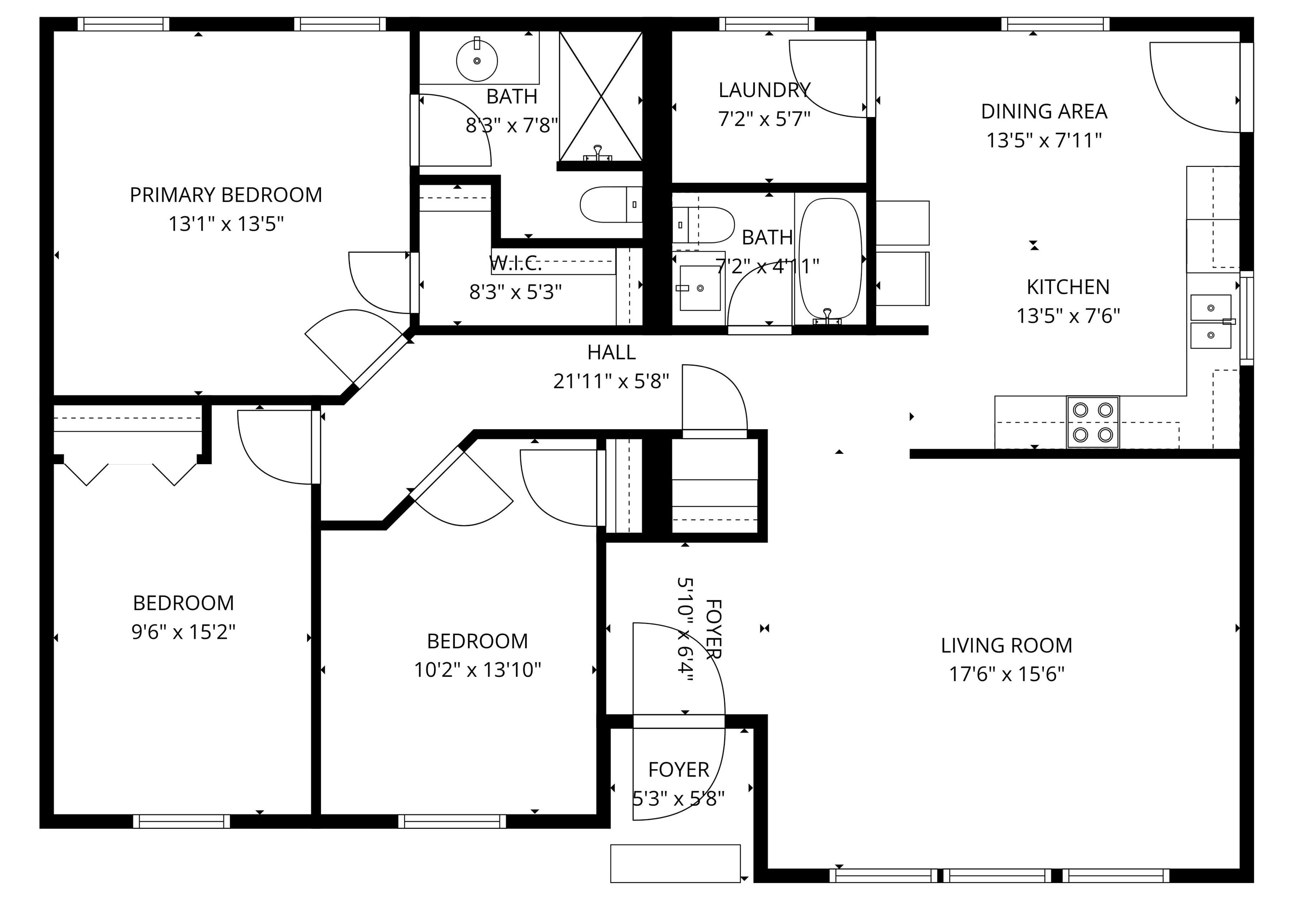
Enjoy single story living in this three bedroom, two bathroom Ranch, just minutes from Westgate Mall and I-26, making daily errands and commuting a breeze. The home sits on a spacious 0.27+/-acre lot with a welcoming front porch that feels perfect for morning coffee or a quiet moment at the end of the day. As you step inside, you enter the spacious living room, where there’s plenty of room to arrange your favorite seating and create a cozy gathering space. The kitchen sits just off the living area with an open feel, including a dining area that works well for both weeknight meals and weekend brunch. All major appliances convey, including the stove, dishwasher, microwave, and refrigerator. The laundry room sits just behind the kitchen, keeping household tasks tucked out of sight. Down the hall from the living area, you will find the two secondary bedrooms and a nicely finished hall bathroom with an updated sink vanity. The Primary Suite is tucked away at the end of the hall and features a large bedroom, plus an upgraded ensuite bathroom with a walk-in shower and walk-in closet. On your tour, you will also notice that this home is completely carpet free, giving each room a crisp and clean appearance. If you're searching for a home that has timeless charm and modern comfort, this thoughtfully designed ranch is ready for you to move in and start making memories. Schedule your showing today!

πŸ“Š Property Details

  • Property Type: Residential
  • Living Area: 1,336 sq ft
  • Year Built: 2006

πŸ“ Property Location

Full Address: 317 Seven Oaks Lane

City: Spartanburg

State: SC

ZIP Code: 29301

Information deemed reliable but not guaranteed. Courtesy of MLS Grid.

Last Updated: December 12, 2025