Property Description

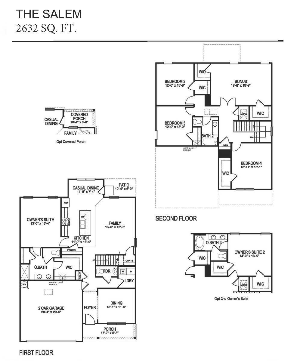
Check out 101 Marblewood Street, a stunning new home in our Chestnut Ridge community. This gorgeous two-story home features four bedrooms, two and a half bathrooms, and a two-car garage, featuring both luxury and practicality with dual primary suites. As you enter, you’ll be welcomed by an inviting foyer that connects to a spacious dining room before leading into the heart of the home. The open-concept design includes a large living room that seamlessly blends into the functional kitchen. The gourmet kitchen is equipped with stainless steel appliances, ample cabinet space, and a large island with a breakfast bar, perfect for both cooking and casual dining. Adjacent to the kitchen, you'll find the first primary suite, complete with a large walk-in closet and a private bathroom. Upstairs, the second primary suite features two walk-in closets and a private bathroom, with plenty of space for relaxation. A versatile loft area upstairs provides additional space, perfect for a media room or playroom. Two additional bedrooms and a full bathroom complete the second floor, making this home perfect for multigenerational living with its dual primary suites. With its thoughtful design, spacious layout, and modern features, this home is the perfect place to call home. Pictures are representative.

📊 Property Details

  • Property Type: Residential
  • Living Area: 2,618 sq ft
  • Year Built: 2026

📍 Property Location

Full Address: 101 Marblewood Street

City: Greenville

State: SC

ZIP Code: 29605

Information deemed reliable but not guaranteed. Courtesy of MLS Grid.

Last Updated: December 11, 2025