Property Description

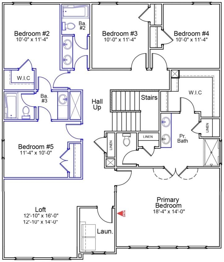
The inviting exterior colors of this home will draw you in! Upon entering, you'll be greeted by beautiful luxury vinyl plank flooring that flows throughout the main level. French doors lead to an office, which is perfect for remote work or as a play area. The formal dining room seamlessly connects to the family room, making entertaining a breeze. The chef in the family will appreciate the upgraded kitchen, featuring a large island, a spacious pantry, granite countertops, stainless steel appliances, and shaker-style cabinetry. Ample windows bathe the interior in natural light and offer a lovely view of the half-acre backyard, which is lined with trees. Upstairs, two secondary bedrooms share an en suite bathroom, while the other two bedrooms share a hall bathroom. A loft area provides an alternative space for movie nights and gatherings with friends and family. Completing this home is the spacious primary suite, which boasts a large walk-in closet, dual sinks with quartz countertops, a five-foot shower, and additional storage closets. Come see this beautiful home today in Dove Hollow!

📊 Property Details

  • Property Type: Residential
  • Living Area: 3,049 sq ft
  • Year Built: 2025

📍 Property Location

Full Address: 423 Dodger Avenue

City: Chesnee

State: SC

ZIP Code: 29323

Information deemed reliable but not guaranteed. Courtesy of MLS Grid.

Last Updated: November 30, 2025