Property Description

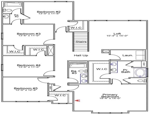
This stunning home is sure to impress with its many features! As you enter, you’ll notice the luxury vinyl plank flooring that flows throughout the main level. The large office is an ideal space for a home office or play area. The open concept layout is perfect for entertaining guests. The upgraded kitchen boasts granite countertops, stainless steel appliances, and shaker-style cabinetry. It seamlessly overlooks the family room, which has views of the spacious backyard lined with trees. Additionally, the downstairs flex room is perfect for a formal dining area or extra space for gatherings. Upstairs, you’ll find a welcoming loft that adds extra space for movie nights. Two of the bedrooms share a convenient en suite bathroom, while the other two share a hall bath. The expansive primary suite features a large walk-in closet, a five-foot shower, and dual sinks topped with quartz countertops. Come see this beautiful home today!

📊 Property Details

  • Property Type: Residential
  • Living Area: 3,503 sq ft
  • Year Built: 2025

📍 Property Location

Full Address: 419 Dodger Avenue

City: Chesnee

State: SC

ZIP Code: 29323

Information deemed reliable but not guaranteed. Courtesy of MLS Grid.

Last Updated: December 01, 2025