Property Description

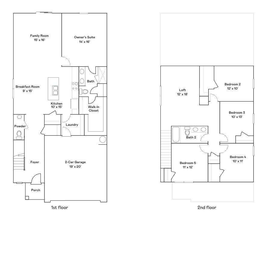
The Frost floorplan at The Maple in Inman, SC, is the perfect home for a growing family. With 5 bedrooms and 3 bathrooms, this spacious two-story design provides room for everyone to thrive. The first floor boasts an open layout, with the family room, kitchen, and breakfast area flowing together to create a warm, inviting space for daily living and entertaining. A secluded secondary bedroom is perfect for guests, along with a convenient two-car garage. Upstairs, a versatile flex room offers extra living space, while four bedrooms, including a large owner’s suite, provide comfort and privacy. The Frost floorplan combines style, function, and space for the entire family to enjoy. It's the ideal home for making lasting memories with your loved ones. It's ideal for families seeking a peaceful neighborhood with convenient connections to Greenville and Spartanburg.

πŸ“Š Property Details

  • Property Type: Residential
  • Living Area: 2,578 sq ft
  • Year Built: 2025

πŸ“ Property Location

Full Address: 4059 Rustling Grass Trail

City: Inman

State: SC

ZIP Code: 29349

Information deemed reliable but not guaranteed. Courtesy of MLS Grid.

Last Updated: December 06, 2025