Property Description

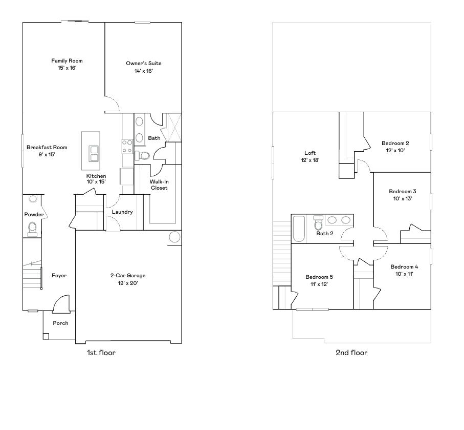
The Crane floorplan at Autumn Glen in Woodruff, SC, is designed to both comfort and convenience, making it the perfect family home. With 4 bedrooms and 2.5 bathrooms, this two-story layout is ideal for modern living. The first floor features a spacious family room that seamlessly connects to the kitchen and breakfast area, creating an open, welcoming space for family gatherings and daily life. A two-car garage adds convenience and functionality. Upstairs, you'll find a versatile loft, perfect for additional living or play space, along with four restful bedrooms, including a large owner’s suite that serves as a private retreat. This floorplan has everything a growing family needs, blending practicality with comfort. It's the ideal home for making lasting memories with your loved ones. It's ideal for families seeking a peaceful neighborhood with convenient connections to Greenville and Spartanburg.

πŸ“Š Property Details

  • Property Type: Residential
  • Living Area: 1,955 sq ft
  • Year Built: 2025

πŸ“ Property Location

Full Address: 212 Cobridge Lane

City: Woodruff

State: SC

ZIP Code: 29388

Information deemed reliable but not guaranteed. Courtesy of MLS Grid.

Last Updated: November 20, 2025