Property Description

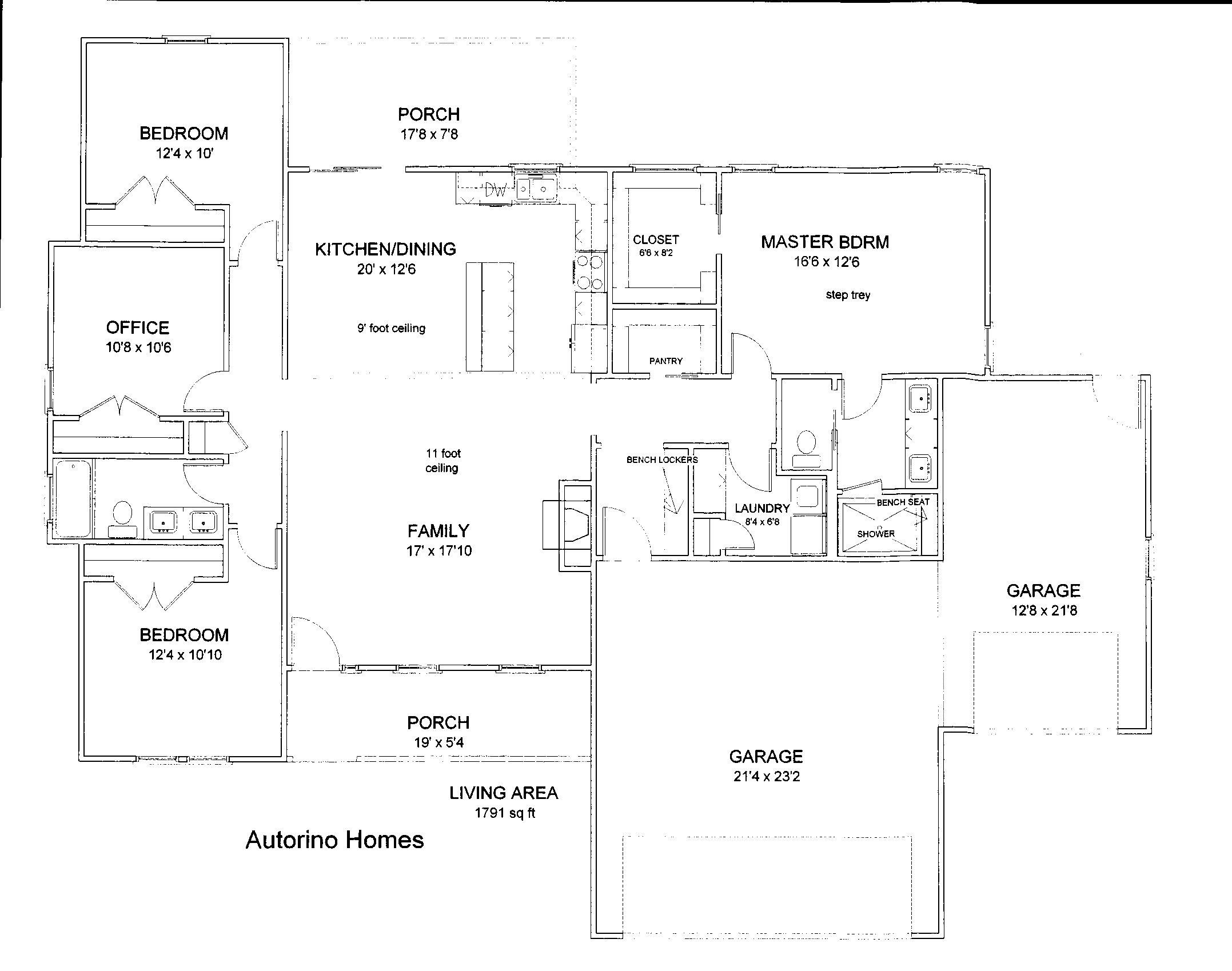
This stunning modern farmhouse offers approximately 1,790 sq. ft. of beautifully designed living space, featuring 3 bedrooms, 2 bathrooms, and a versatile flex room—perfect for a home office, playroom, or guest space. Nestled on a 0.44-acre lot, this home includes a 3-car garage, offering both comfort and functionality. Step onto the charming rocking chair front porch and into the inviting foyer, where the indirect lighting shadow box sets the tone for the home’s thoughtful design. The living room impresses with a stone fireplace and a step trey ceiling enhanced by lighted crown molding, creating an elegant focal point. The kitchen is a showstopper—featuring white shaker perimeter cabinets, a gray island with granite countertops, stainless steel appliances, and a white subway tile backsplash with windows for abundant natural light. A walk-in pantry adds convenience and ample storage. Retreat to the primary bedroom, highlighted by a tray ceiling with indirect lighting, a double vanity with lighted mirrors, and a luxurious walk/roll-in shower. The laundry room includes a folding area, and the hall bath features a single vanity with generous storage. Flooring selections include tile in all baths, carpet in the bedrooms, and durable laminate throughout the main living areas. The three-car garage offers exceptional design and flexibility — two bays feature a side entry with an 18’ wide door, while the third bay provides a straight entry with a 9’ wide door. With epoxy-coated floors, TV wiring, and a rear man door to the backyard, this space is ideal for a workshop, hobby area, or private hangout. Outdoor living shines with a covered rear porch and a large grilling patio, perfect for relaxing or entertaining. NOTE: BUILDERS IS THE OWENER AND LISTING BROKER ON THIS PROPERTY. Completion date estimated for 12/30/25.

📊 Property Details

  • Property Type: Residential
  • Living Area: 1,790 sq ft
  • Year Built: 2025

📍 Property Location

Full Address: 455 Old Chesnee Hwy

City: Chesnee

State: SC

ZIP Code: 29323

Information deemed reliable but not guaranteed. Courtesy of MLS Grid.

Last Updated: November 23, 2025