Property Description

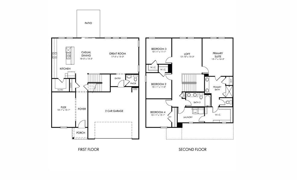
Brand new, energy-efficient home available by Nov 2025! Outfit the Dakota's main-level flex space as a home office and skip your commute. In the kitchen, the island overlooks the open living space. Barnett Harbor cabinets and Save Woodlands Carmen EVP flooring come in our Classic White package. Small-town charm meets big-city amenities in this Spartanburg community. Situated just four miles from downtown Spartanburg and in the highly desirable Spartanburg High School District, Holland Park offers functional floorplans with included features like outdoor patios and designer-curated interior packages. Residents in Holland Park can look forward to enjoying community amenities like the pool and cabana, playground, fire pit, and more.

📊 Property Details

  • Property Type: Residential
  • Living Area: 2,479 sq ft
  • Year Built: 2026

📍 Property Location

Full Address: 117 Milo Road

City: Spartanburg

State: SC

ZIP Code: 29301

Information deemed reliable but not guaranteed. Courtesy of MLS Grid.

Last Updated: November 13, 2025