Property Description

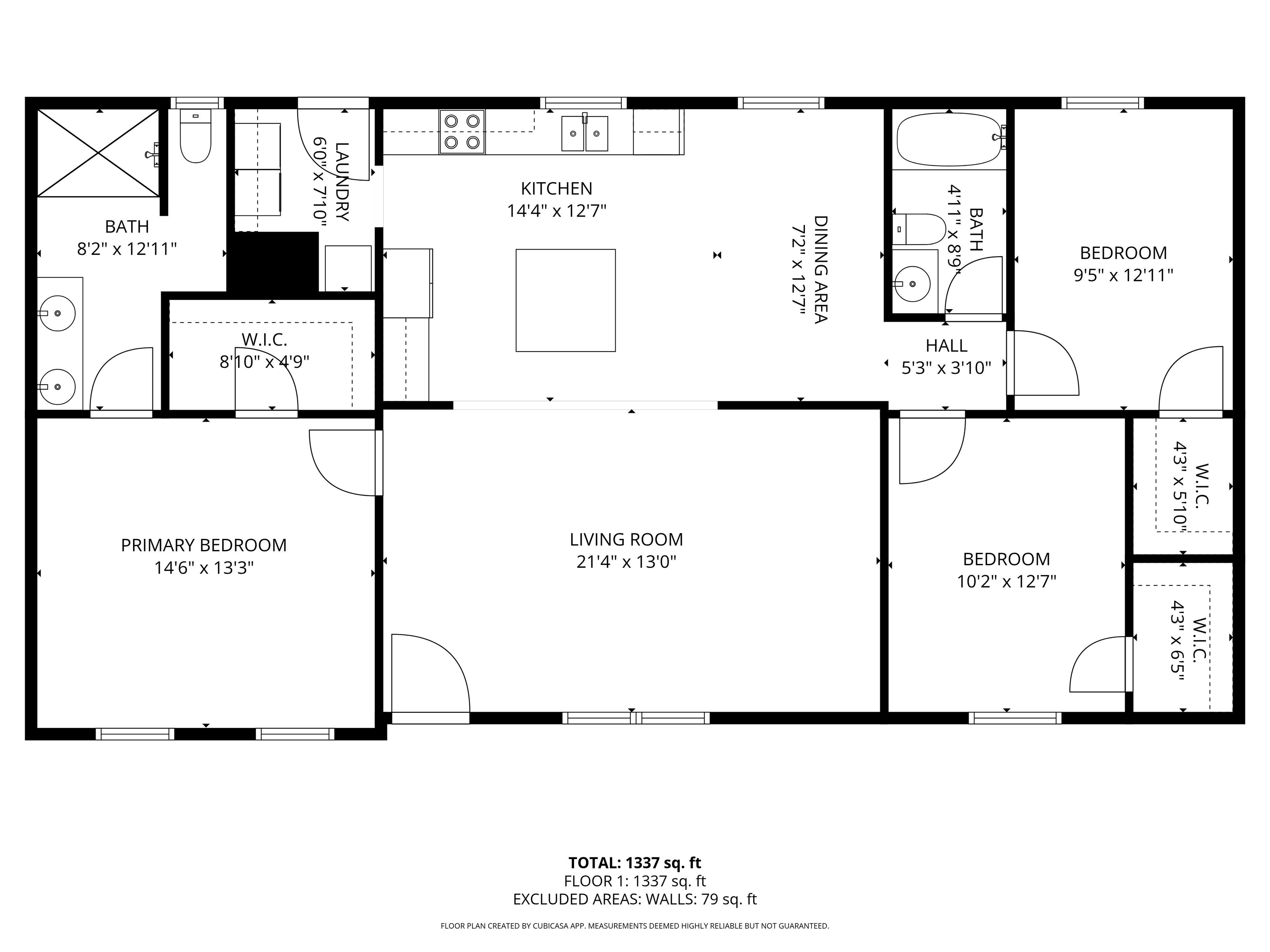
This home is part of two-home sale. 390 Sherrill Drive is also available for sale and shares a driveway with 389 Sherrill Drive. The homes can be sold separately or together. Discover peaceful country living in this spacious 3-bedroom, 2-bath double-wide mobile home offering 1,450 square feet of comfortable living space, nestled on just over half an acre with beautiful creek views and a secluded setting. Step inside to a bright, open floor plan featuring a huge kitchen island—perfect for cooking, entertaining, or gathering with family. Each bedroom includes its own walk-in closet, providing plenty of storage space, while the primary suite offers a private retreat with a double vanity and oversized shower. Additional highlights include a walk-in laundry room, covered front porch ideal for morning coffee or evening relaxation, and a cozy campfire/sitting area for outdoor enjoyment. The 2-car carport provides convenient covered parking, and the recently replaced HVAC system ensures year-round comfort. For those seeking even more space or multi-generational living options, the neighboring property at 390 Sherrill Drive—featuring 10 beautiful acres—is also available for purchase. Together, these properties offer a unique opportunity to create a family compound or private homestead with plenty of room to grow. Enjoy the quiet life surrounded by nature, just minutes from modern conveniences. This property truly combines comfort, charm, and country serenity in one inviting package!

📊 Property Details

  • Property Type: Residential
  • Living Area: 1,456 sq ft
  • Year Built: 2015

📍 Property Location

Full Address: 389 Sherrill Drive

City: Blacksburg

State: SC

ZIP Code: 29702

Information deemed reliable but not guaranteed. Courtesy of MLS Grid.

Last Updated: October 30, 2025