Property Description

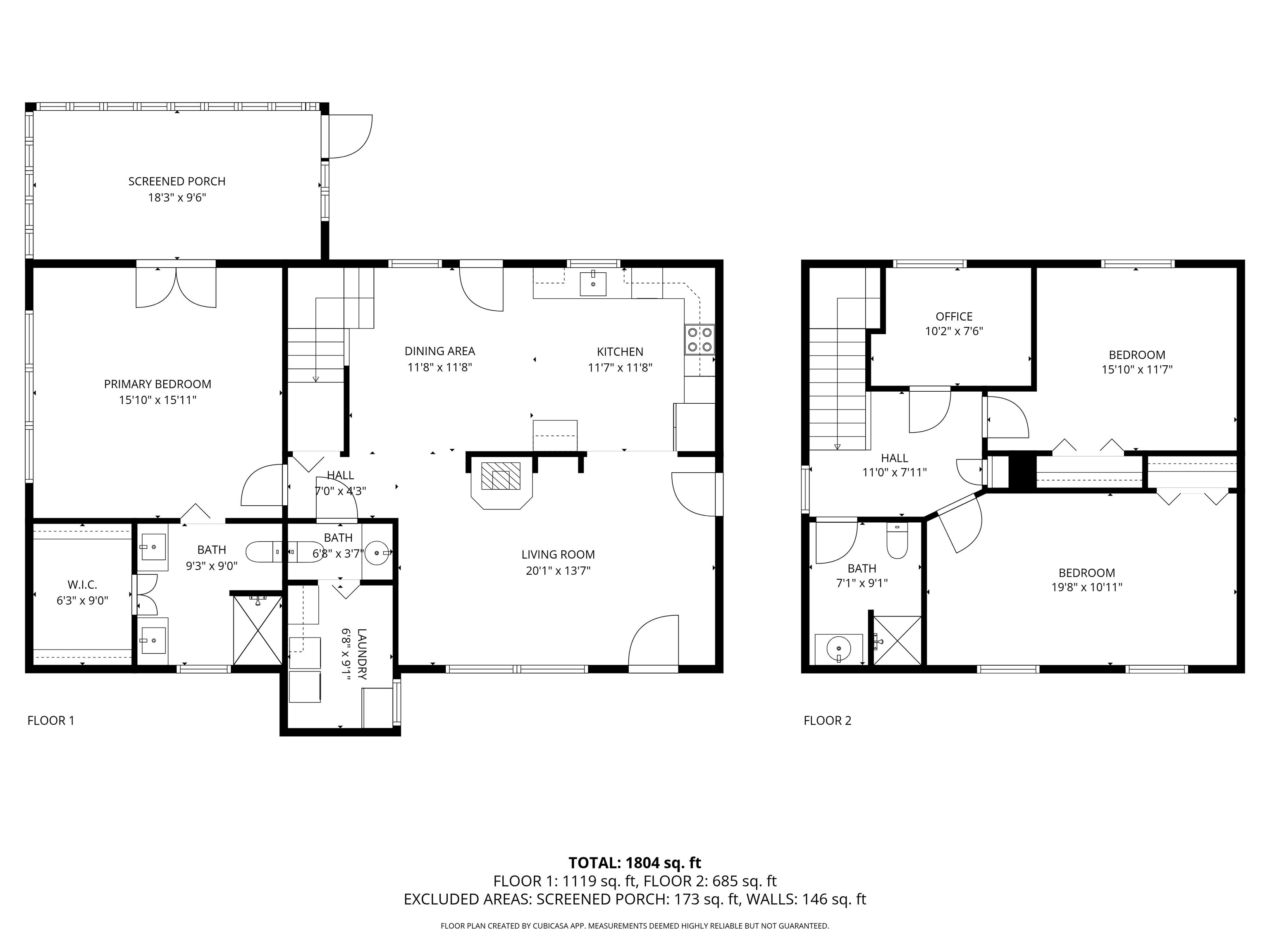
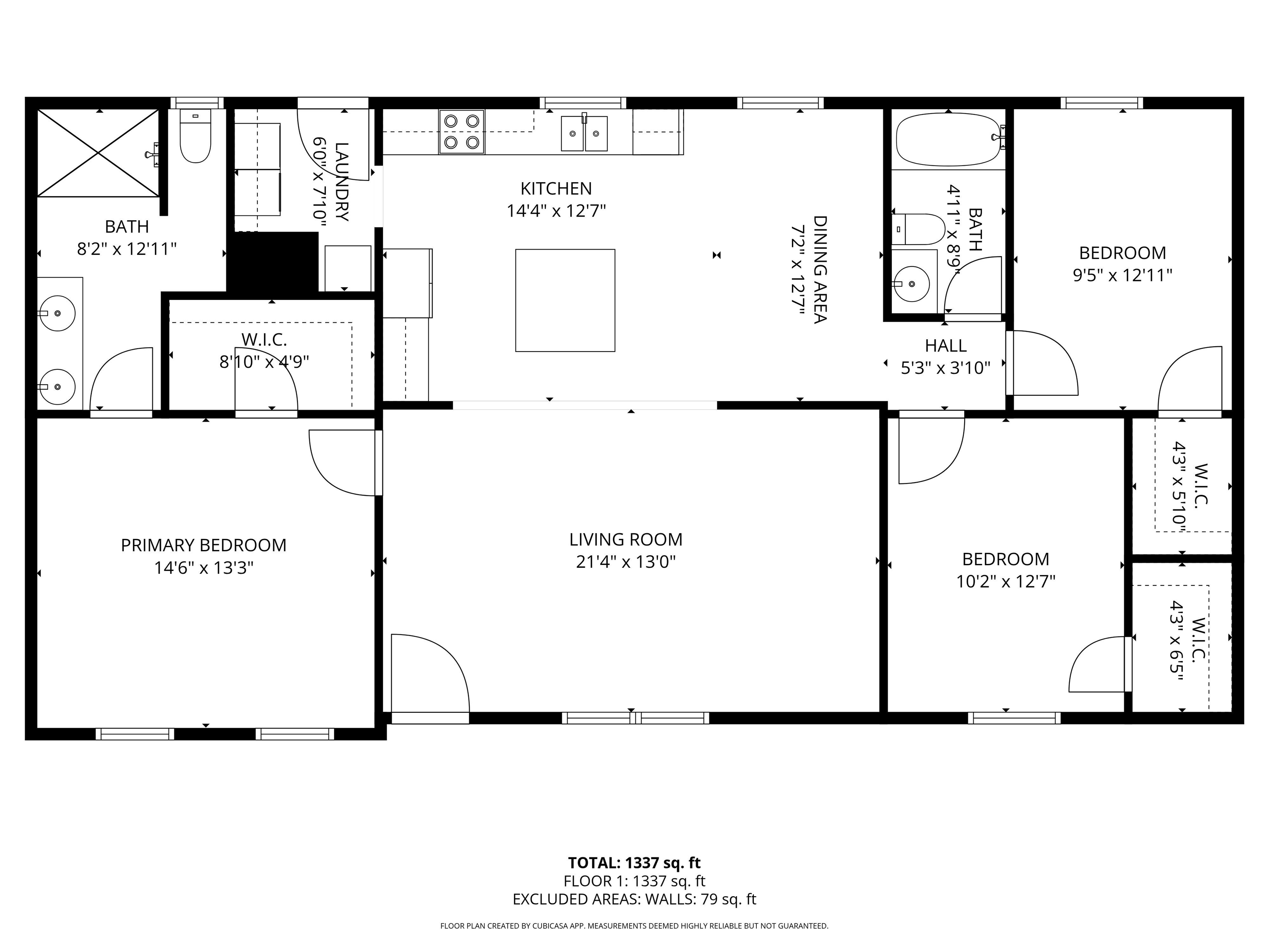
Welcome to an extraordinary opportunity to own two beautiful homes on over 10 acres of peaceful countryside, offering privacy, versatility, and room for everyone. Together, 390 and 389 Sherrill Drive create the perfect multi-generational retreat, or investment property—combining modern comfort with the charm of rural living. At 390 Sherrill Drive, you’ll find a stunning two-story home with 1,900 sq. ft., featuring 3 bedrooms and 2.5 baths on over 10 acres with a picturesque creek and bridge. The property includes a guest house/apartment with full bath, above-ground pool, large screened-in porch, covered front porch, and a root cellar. A wood-burning stove and solar-powered generator system provide off-grid peace of mind, while a 2-car carport and gated entry add convenience and security. The interior is tastefully designed, highlighted by a huge walk-in closet and dual vanity in the primary suite. Next door, 389 Sherrill Drive features a spacious 3-bedroom, 2-bath double-wide mobile home with 1,450 sq. ft. on just over half an acre overlooking the creek. Enjoy a covered front porch, 2-car carport, and campfire/sitting area perfect for entertaining. Inside, you’ll love the large kitchen island, walk-in closets in every bedroom, and primary suite with double vanity and oversized shower. The HVAC system has been recently replaced, offering move-in-ready comfort. Together, these properties deliver the best of both worlds—ample living space, multiple residences, and wide-open land with natural beauty all around. Whether you’re seeking a private estate, family retreat, or investment with rental potential, the Sherrill Drive properties are a rare find that truly have it all.

📊 Property Details

  • Property Type: Residential
  • Living Area: 3,356 sq ft
  • Year Built: 2014

📍 Property Location

Full Address: 389/390 Sherrill Drive

City: Blacksburg

State: SC

ZIP Code: 29702-8557

Information deemed reliable but not guaranteed. Courtesy of MLS Grid.

Last Updated: October 30, 2025