Property Description

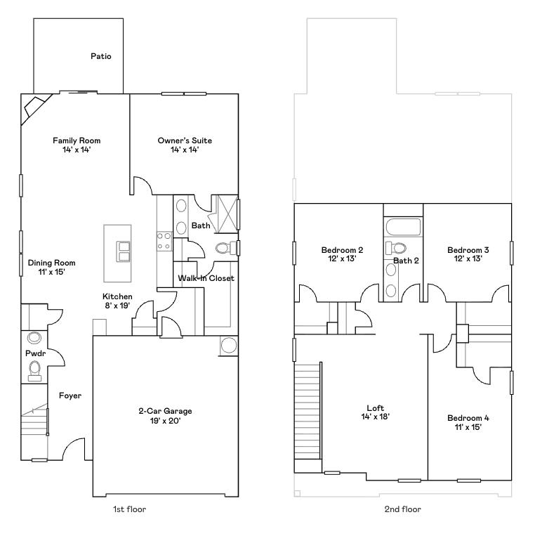
The Sweetbay floor plan at Neely Park Walk in Woodruff, SC, is a spacious and thoughtfully designed two-story home featuring 4 bedrooms, 2.5 bathrooms, and a 2-car garage. The main level offers an open-concept layout connecting the kitchen, dining, and family rooms, with sliding doors that lead to a patio, while the owner’s suite is tucked in the back for added privacy. Upstairs includes a versatile loft and three secondary bedrooms, each with walk-in closets. This plan is ideal for families seeking both connectivity and personal space, and residents enjoy access to community amenities such as a pool, clubhouse, playground, dog park, and sports courts. With several homes available or under construction, the Sweetbay combines functional design with a welcoming neighborhood environment.

πŸ“Š Property Details

  • Property Type: Residential
  • Living Area: 1,735 sq ft
  • Year Built: 2025

πŸ“ Property Location

Full Address: 423 Lee's Corner Lane

City: Woodruff

State: SC

ZIP Code: 29388

Information deemed reliable but not guaranteed. Courtesy of MLS Grid.

Last Updated: December 13, 2025