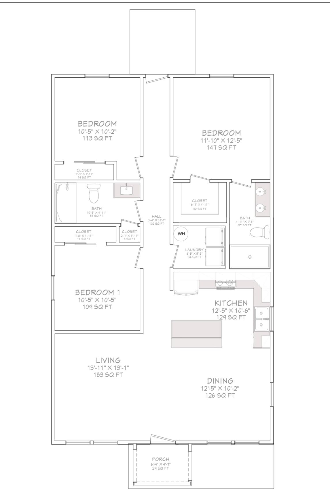
Property Description

New Construction! Open living concept. Recessed lighting, LVP throughout home. Kitchen features SS appliances, Quartz counter tops, subway tile backsplash. Island for extra seating and entertaining! The living and dining areas flow seamlessly, creating a bright and welcoming atmosphere. The primary suite includes a walk-in closet and a private bath featuring a stylish walk-in shower. Estimated completion December 2025. No HOA!

📊 Property Details

  • Property Type: Residential
  • Living Area: 1,215 sq ft
  • Year Built: 2025

📍 Property Location

Full Address: 450 SHARPE Street

City: Woodruff

State: SC

ZIP Code: 29388

Information deemed reliable but not guaranteed. Courtesy of MLS Grid.

Last Updated: November 21, 2025