Property Description

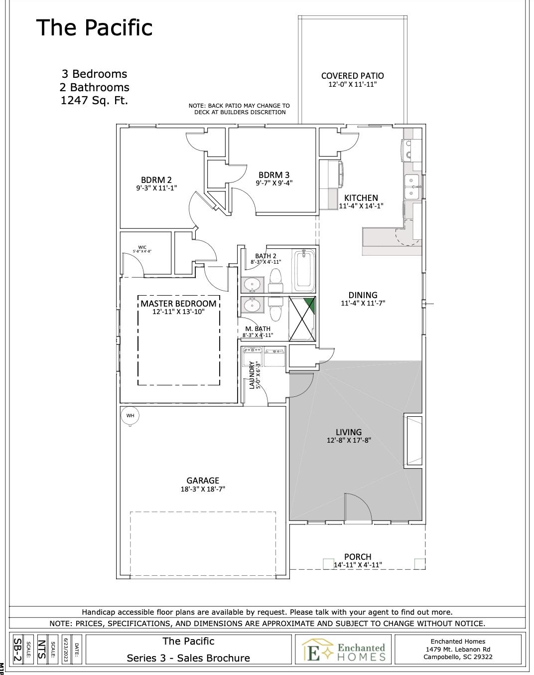
The PACIFIC (Lot 48) offers a modern, open concept living area perfect for entertaining. 3 bedroom, 2 bath. Complete with the trademark chair rail, crown molding, and rope lighting. 12' x 12' covered back patio and additional 12' x 10' uncovered patio. 30-year architectural shingles, site-built construction, and a 10 year limited warranty are included to give you peace of mind. Preferred Lender/Attorney Closing Costs Incentive Offered! Home is currently in slab stage and most color selections are still available for buyer. *Virtual tour reflects same house plan, not exact house.

📊 Property Details

  • Property Type: Residential
  • Living Area: 1,247 sq ft
  • Year Built: 2025

📍 Property Location

Full Address: 1261 Cleve Gosnell Lane

City: Spartanburg

State: SC

ZIP Code: 29303

Information deemed reliable but not guaranteed. Courtesy of MLS Grid.

Last Updated: October 19, 2025