Property Description

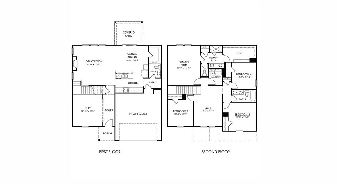
Brand new, energy-efficient home available by Nov 2025! Send the kids up to play in the Brentwood's spacious loft while entertaining downstairs in the open kitchen. First-floor flex space makes a useful work area, while the luxurious primary suite is ideal for relaxing. Now selling in Easley. Maxwell Commons will feature fabulous energy-efficient floorplans with open designs, fireplaces, and flex spaces to suit your lifestyle. Enjoy shopping and dining in downtown Easley or spend the day outdoors at nearby parks such as Nalley Brown Nature Park. With clear pricing and an easier buying process, Maxwell Commons offers a simple, more affordable way into the home of your dreams. Contact a Sales Counselor today. Each of our homes is built with innovative, energy-efficient features designed to help you enjoy more savings, better health, real comfort and peace of mind.

📊 Property Details

  • Property Type: Residential
  • Living Area: 2,345 sq ft
  • Year Built: 2025

📍 Property Location

Full Address: 403 Granby Trail

City: Easley

State: SC

ZIP Code: 29642

Information deemed reliable but not guaranteed. Courtesy of MLS Grid.

Last Updated: December 19, 2025