Property Description

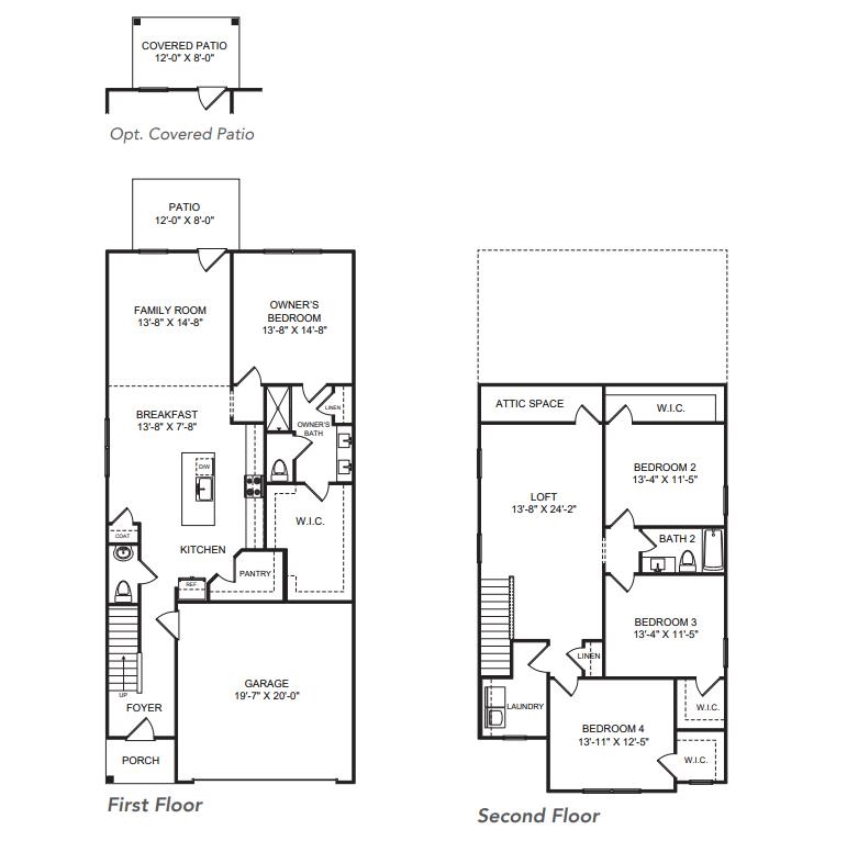
Discover the inviting charm of Halton Oaks, a thoughtfully designed community just minutes from shopping, dining, and entertainment. With award-winning schools, convenient interstate access, and exceptional amenities, it’s the perfect place to call home. Step into the Thames, a floorplan where style meets everyday convenience. On the main floor, the private primary suite has a retreat-like feel, complete with a spa-inspired bathroom featuring dual sinks, quartz countertops, a tiled shower with sliding glass doors, ceramic flooring, and a spacious walk-in closet complete with hookups for a stackable washer and dryer. The heart of the home is the open kitchen and family room, seamlessly blending function with modern design. The kitchen features stainless steel appliances, a five-burner gas range, quartz countertops, pendant lighting, and an oversized island that’s perfect for meals or entertaining. A refrigerator is included for your convenience. Just off the family room, a covered patio extends your living space outdoors—ideal for gatherings or quiet evenings at home. Upstairs, discover a flexible loft area that can serve as a second living space, playroom, or home office. There’s also a large laundry room with a window. Three generously sized bedrooms, each with their own walk-in closet, are also located on this level. A shared full bath with double sinks completes the upstairs, providing comfort and ease for family and guests. There's even an irrigation system! Community amenities include pool, clubhouse and playground. Schedule your tour today! ***Ask about limited time closing cost assistance and lender program with 100% financing***

📊 Property Details

  • Property Type: Residential
  • Living Area: 2,411 sq ft
  • Year Built: 2025

📍 Property Location

Full Address: 1110 Ogeechee Court

City: Spartanburg

State: SC

ZIP Code: 29303

Information deemed reliable but not guaranteed. Courtesy of MLS Grid.

Last Updated: December 30, 2025