Property Description

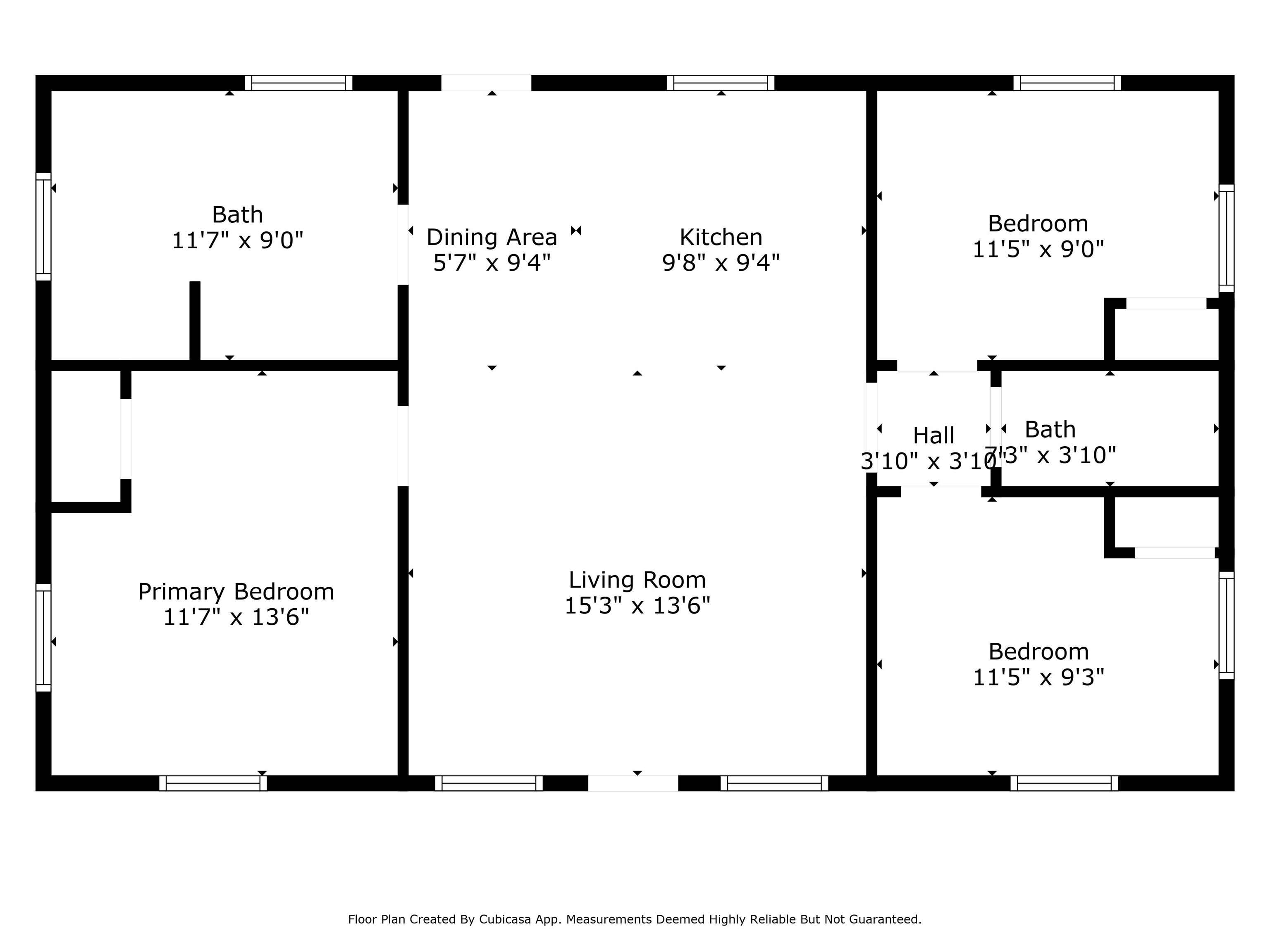
Don't miss this unique opportunity to own a thoughtfully converted mobile classroom now serving as a comfortable 3-bedroom, 1.5-bath dwelling. Situated on a manageable 0.22-acre lot, this property offers a blend of functionality, affordability, and recent upgrades. This property is an investors dream with an estimated rental income of $1395 per month! Step inside to find a cozy and efficient floor plan featuring three well-sized bedrooms, a full bath, and an additional half bath for guests or family convenience. Recent updates include a new roof and a new HVAC system, offering peace of mind and energy efficiency for years to come. The property also features a one-car detached garage, perfect for secure parking, storage, or a workshop space. Enjoy the convenience of being just 10 minutes from local schools and within walking distance to a neighborhood grocery store; an ideal location for easy, everyday living. Whether you're looking for a primary residence or a smart investment property, this versatile property has a lot to offer. Schedule your showing today!

📊 Property Details

  • Property Type: Land
  • Living Area: N/A sq ft
  • Year Built: N/A

📍 Property Location

Full Address: 417 Monarch Highway

City: Union

State: SC

ZIP Code: 29379

Information deemed reliable but not guaranteed. Courtesy of MLS Grid.

Last Updated: October 10, 2025