Property Description

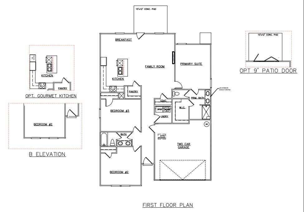
UNDER CONSTRUCTION ** INCLUDED: James Hardi Fiber Cement front, vinyl sides and rear. Vinyl floors in foyer, extended foyer, kitchen, breakfast, and family room. Kitchen comes with recessed lighting pendent lights, 42” cabinets w/crown molding, Stainless Appliance Package with glass cooktop, granite counters with single bowl sink. Master bath includes tiled shower, free standing tub, dual sinks w/adult height vanity, Bluetooth LED Mirrors, granite countertops and tiled floor. Other features include: covered porch, ceiling fan in family room and owner suite, prewires in all bedrooms; Smart Home Features - Panel, Front door lock & Thermostat, 9’ smooth ceilings on the 1st floor, Pre-wire for electric vehicle charging, and whole house blinds.

📊 Property Details

  • Property Type: Residential
  • Living Area: 1,650 sq ft
  • Year Built: 2025

📍 Property Location

Full Address: 289 Talbert Trail

City: Landrum

State: SC

ZIP Code: 29356

Information deemed reliable but not guaranteed. Courtesy of MLS Grid.

Last Updated: December 16, 2025