Property Description

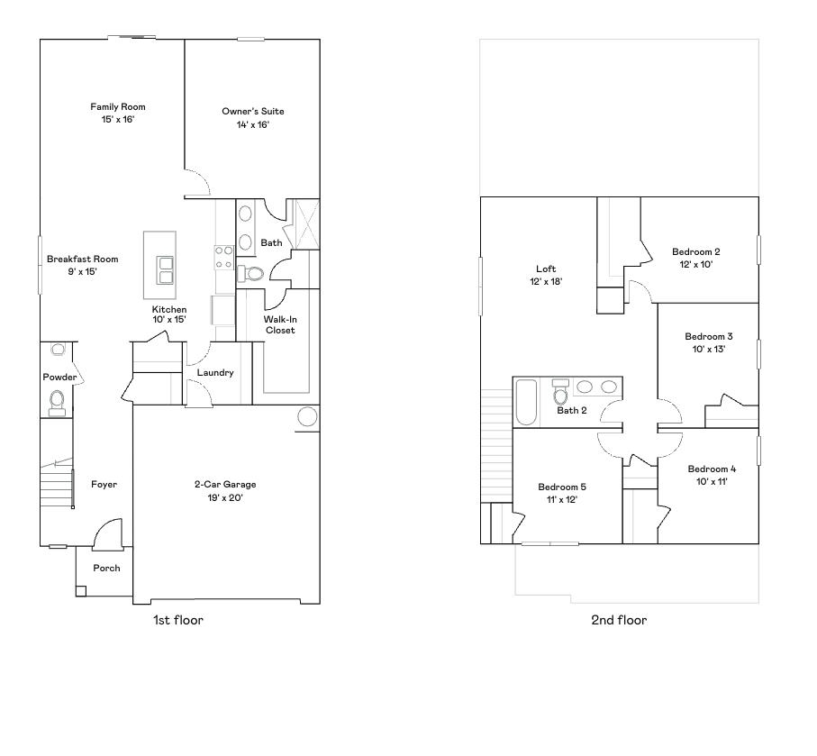
The Crane floorplan at Autumn Glen in Woodruff, SC, is designed to both comfort and convenience, making it the perfect family home. With 4 bedrooms and 2.5 bathrooms, this two-story layout is ideal for modern living. The first floor features a spacious family room that seamlessly connects to the kitchen and breakfast area, creating an open, welcoming space for family gatherings and daily life. A two-car garage adds convenience and functionality. Upstairs, you'll find a versatile loft, perfect for additional living or play space, along with four restful bedrooms, including a large owner’s suite that serves as a private retreat. This floorplan has everything a growing family needs, blending practicality with comfort. It's the ideal home for making lasting memories with your loved ones. It's ideal for families seeking a peaceful neighborhood with convenient connections to Greenville and Spartanburg.

πŸ“Š Property Details

  • Property Type: Residential
  • Living Area: 1,955 sq ft
  • Lot Size: 0.18 acres
  • Garage: 2 spaces
  • Year Built: 2025

🏠 Appliances

Dishwasher Disposal Electric Oven Free-Standing Range Microwave Range

πŸ›‹οΈ Interior Features

Cable Available Walk-In Closet(s) Ceiling - Smooth Solid Surface Counters Open Floorplan Walk-In Pantry

🏑 Exterior Features

Aluminum/Vinyl Trim

πŸš— Parking & Garage

2 Car Attached Garage Door Opener

🌑️ Heating & Cooling

Central Air Zoned Forced Air Heat Pump

πŸͺ΅ Flooring

Carpet Luxury Vinyl

πŸ—οΈ Construction

Stone Vinyl Siding

🌳 Lot Features

Sloped

πŸ“ Property Location

Full Address: 128 Crewe Street

City: Woodruff

State: SC

ZIP Code: 29388

County: Spartanburg

Subdivision: Autumn Glen

πŸŽ“ School Information

Elementary School

4-Woodruff E

Middle School

4-Woodruff J

High School

Other

Information deemed reliable but not guaranteed. Courtesy of MLS Grid.

Last Updated: October 22, 2025