Property Description

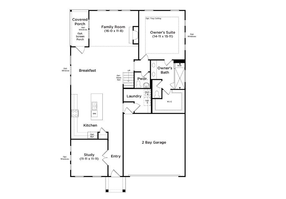
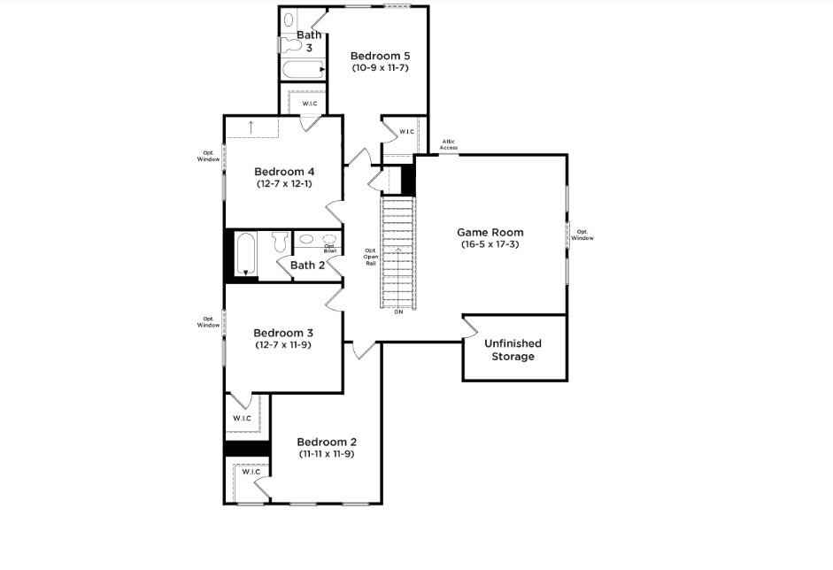
Welcome to Iris Meadows, where your dreams of summer fun and luxury living will come to life! Enjoy first-class amenities, including a community pool and relaxing cabana. With over 2900 square feet, the Augusta offers a perfect blend of style and functionality. The welcoming front porch leads into the foyer with an adjacent study with french doors, perfect for a home office. Continuing into the kitchen, you will love the open concept style with features including dark brown cabinetry, white Quartz countertops, tiled backsplash, under cabinet lighting, center island with sink for additional prep space and seating and upgraded stainless steel gas appliances. The living room boasts high ceilings, large windows for natural light and a gas fireplace with stone surround.The breakfast area opens to the covered back porch overlooking your backyard. The main-level Primary suite includes double vanities, generous walk in closet and an amazing Roman tiled shower with two showerheads, seat and frameless glass door. A laundry room and powder room complete the first floor. Up the Oak staircase you have four additional bedrooms, all with walk in closets, one with an en suite bath, an additional hall bath with double sinks, a multi-use room, and an unfinished storage area. Smart home technology, energy-efficient construction, and a dedicated local warranty team ensure lasting convenience and comfort. Located in Moore, SC, Iris Meadows offers a pool, cabana, and craftsman-style homes. With easy access to I-26 and I-85, shopping, dining, and entertainment, and zoning for sought-after Spartanburg District 5 Schools, this community is the perfect place to call home. This home will be complete by the end of the year so come by today for more information and make Iris Meadows your new home.

📊 Property Details

  • Property Type: Residential
  • Living Area: 2,926 sq ft
  • Lot Size: 0.16 acres
  • Garage: 2 spaces
  • Year Built: 2025

🏠 Appliances

Dishwasher Disposal Microwave Gas Oven Self Cleaning Oven Gas Range

🛋️ Interior Features

Cable Available High Ceilings Attic Stairs Pulldown Fireplace Walk-In Closet(s) Ceiling - Smooth Solid Surface Counters Open Floorplan Pantry Smart Home

🚗 Parking & Garage

2 Car Attached Garage Door Opener

🌡️ Heating & Cooling

Central Air Forced Air

🪵 Flooring

Carpet Luxury Vinyl

🏗️ Construction

Vinyl Siding

🌳 Lot Features

Level

📍 Property Location

Full Address: 1137 Matisse Circle

City: Moore

State: SC

ZIP Code: 29369

County: Spartanburg

Subdivision: Iris Meadows

🎓 School Information

Elementary School

5-River Ridge

Middle School

5-Florence Chapel

High School

5-Byrnes High

Information deemed reliable but not guaranteed. Courtesy of MLS Grid.

Last Updated: October 03, 2025