Property Description

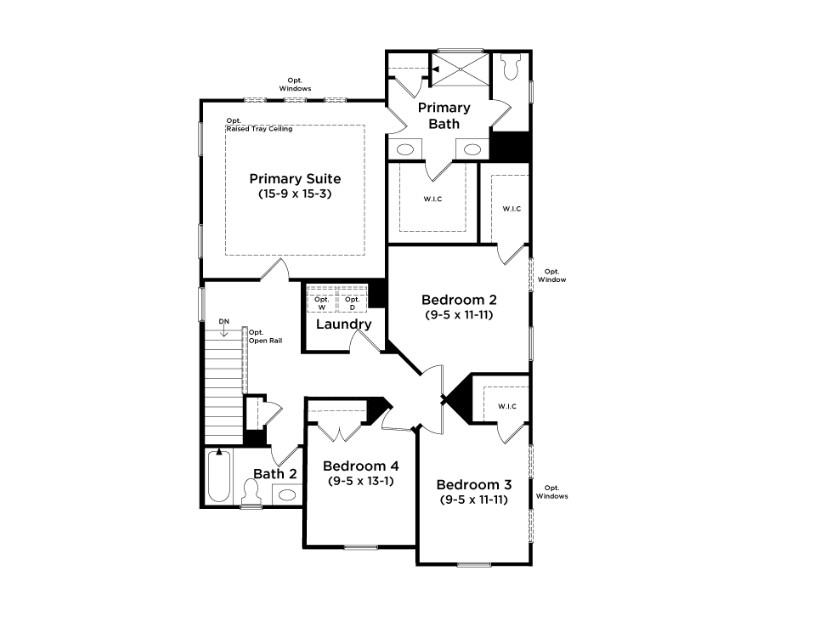
Proposed Construction Opportunity! Customize the home by visiting the design center to pick colors and options. Price listed is base price before options are added. Welcome to Fox Hollow! Elegant tree-lined living in a premier school disctrict with the best of Spartanburg nearby. This Craftsman style Beramont home features almost 2000 square feet of living space and is a new design for DRB in Greenville. Entering into your foyer from your covered front porch or 2 car garage, you have a spacious foyer that leads into your open concept living room and kitchen. Features of the kitchen include a large island for additional prep space and seating, stainless steel appliances including a gas range/oven and options such as granite or Quartz countertops, cabinet selection, tiled backsplash, and under cabinet lighting. The large windows in the living room give it a bright and open feel and you have the option to have a gas fireplace. The breakfast room leads out to your patio or covered porch which is a great place for those summer cookouts! Upstairs you will come to your large loft space, perfect for extra living space or could even be a home office. The Primary Suite includes double sinks, a large walk in closet and a options of a tiled shower, Roman shower with two showerheads or even a separate tub and shower. Two additional bedrooms, both with walk in closets, a full bath, and laundry complete the second floor. You can also add a fourth bedroom in lieu of the loft space. Smart home technology, energy-efficient construction, and a dedicated local warranty team ensure lasting convenience and comfort. New single-family homes in Spartanburg, SC. Centrally located between Interstate 85 and Interstate 26. With large wooded homesites experience a private lifestyle with convenient access nearby recreation including lakes, golf courses, mountains, downtown areas, and parks. The entirety of the upstate is under 5 miles away with both I-26 and I-85 nearby. Spartanburg district 6 schools, less than 2 miles from Fairforest Elementary School. Only 17 minutes from GSP international Airport. Quick access to all shopping, dining and entertainment opportunities around with the Highway 29 and I-585 corridors both within 15 minutes away. Up to $28,000 in Seller Concessions that can be used towards closing cost or design center options with preferred attorney. Come by today for your personal tour and make Fox Hollow your new home!

📊 Property Details

  • Property Type: Residential
  • Living Area: 1,929 sq ft
  • Lot Size: 0.16 acres
  • Garage: 2 spaces
  • Year Built: 2025

🏠 Appliances

Dishwasher Disposal Microwave Gas Oven Self Cleaning Oven Gas Range Range

🛋️ Interior Features

Cable Available High Ceilings Attic Stairs Pulldown Walk-In Closet(s) Ceiling - Smooth Solid Surface Counters Open Floorplan Pantry Smart Home

🚗 Parking & Garage

2 Car Attached Garage Door Opener

🌡️ Heating & Cooling

Central Air Forced Air

🪵 Flooring

Carpet Luxury Vinyl

🏗️ Construction

Vinyl Siding

🌳 Lot Features

Level

📍 Property Location

Full Address: 1621 Vixen Drive

City: Spartanburg

State: SC

ZIP Code: 29303

County: Spartanburg

Subdivision: Fox Hollow

🎓 School Information

Elementary School

6-Fairforest

Middle School

6-Fair Forest

High School

6-Dorman High

Information deemed reliable but not guaranteed. Courtesy of MLS Grid.

Last Updated: October 24, 2025