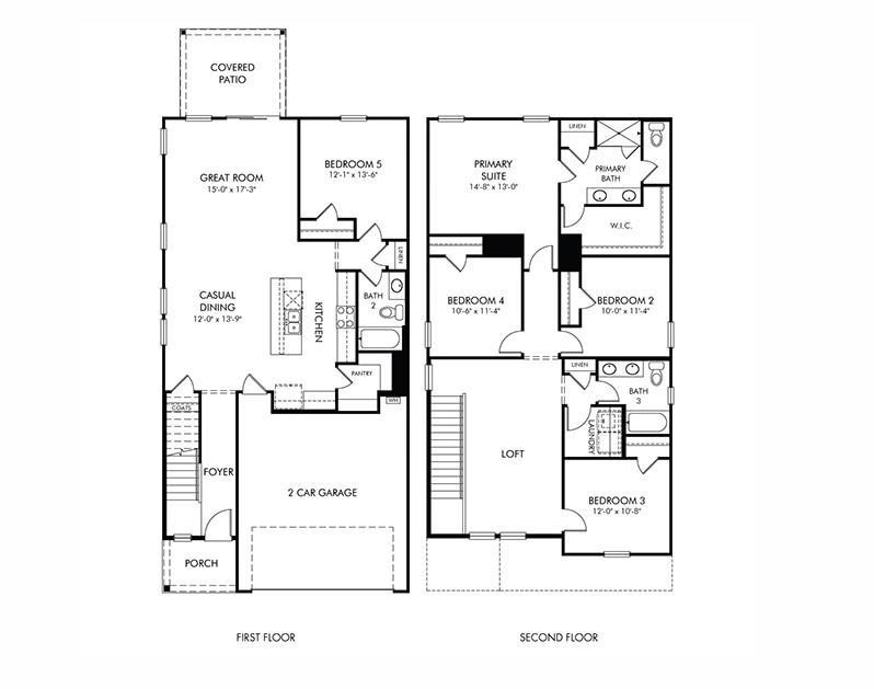
Property Description

Brand new, energy-efficient home available by Sep 2025! Host your next gathering in the open-concept kitchen and living area. Dual sinks and a large closet complement the primary suite. White cabinet with white quartz countertops, EVP flooring, and carpet in our Radiant Package. Village at White Pine is located just off I-85 and Hwy 76 in Anderson County. Explore shopping, restaurants, and entertainment in Anderson and Clemson. There is no shortage of activities for the outdoor lover. Spend the day hiking and boating at Lake Hartwell. Take advantage of academic, cultural, and social experiences at Clemson University and Anderson University. Village at White Pine offers the perfect blend of convenience and comfort. Each of our homes is built with innovative, energy-efficient features designed to help you enjoy more savings, better health, real comfort and peace of mind.

📊 Property Details

  • Property Type: Residential
  • Living Area: 2,352 sq ft
  • Lot Size: 0.12 acres
  • Garage: 2 spaces
  • Year Built: 2025

💰 Financial Information

  • Annual Taxes: $1
  • Tax Year: 2025

🏠 Appliances

Dishwasher Disposal Microwave Range

🛋️ Interior Features

Attic Stairs Pulldown Fireplace(s) Ceiling - Smooth Solid Surface Counters

🌡️ Heating & Cooling

Central Air Forced Air

🪵 Flooring

Carpet Ceramic Tile Vinyl

🏗️ Construction

Vinyl Siding

🌳 Lot Features

Level Many Trees

📍 Property Location

Full Address: 404 shortleaf Lane

City: Pendleton

State: SC

ZIP Code: 29670

County: Anderson

Subdivision: Village@White Pine

🎓 School Information

Elementary School

Other

Middle School

Other

High School

Other

Information deemed reliable but not guaranteed. Courtesy of MLS Grid.

Last Updated: October 01, 2025