Property Description

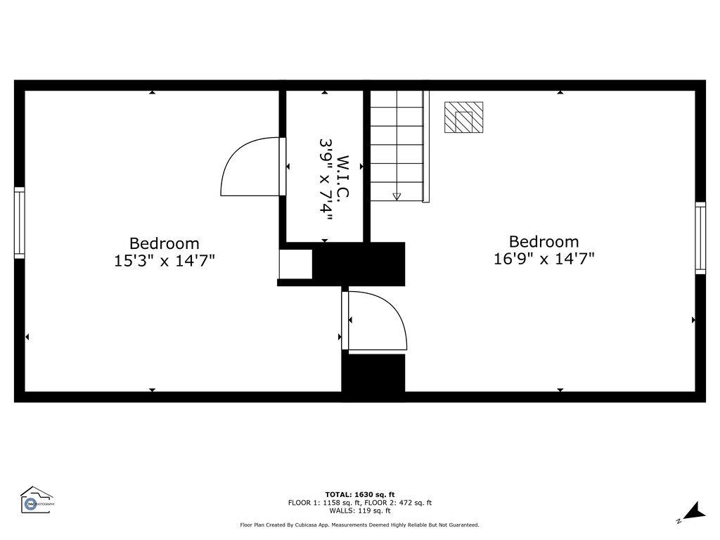
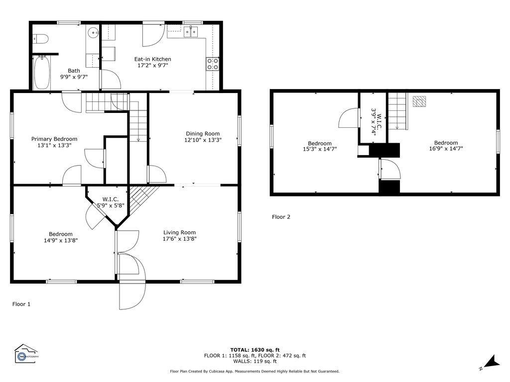
This 3-bedroom, 1-bathroom home offers a versatile layout with a flex roomโ€”perfect for a home office, playroom, or guest space. Inside, youโ€™ll also find a spacious living room, separate dining area, and a large eat-in kitchen. Currently leased and generating income, itโ€™s available for investors looking for a reliable, low-maintenance addition to their portfolio. This property is located in a USDA eligible area and will qualify for 100% financing. No down payment!! Agent is related to seller.

๐Ÿ“Š Property Details

  • Property Type: Residential
  • Living Area: 1,630 sq ft
  • Lot Size: 0.15 acres
  • Year Built: 1978

๐Ÿ’ฐ Financial Information

  • Annual Taxes: $340
  • Tax Year: 2024

๐Ÿชต Flooring

Vinyl

๐Ÿ“ Property Location

Full Address: 203 Louise St

City: Union

State: SC

ZIP Code: 29379

County: Union

Subdivision: Other

๐ŸŽ“ School Information

Elementary School

8-Foster Park

Middle School

8-Sims Middle School

High School

8-Union Comprehensive HS

Information deemed reliable but not guaranteed. Courtesy of MLS Grid.

Last Updated: October 23, 2025