Property Description

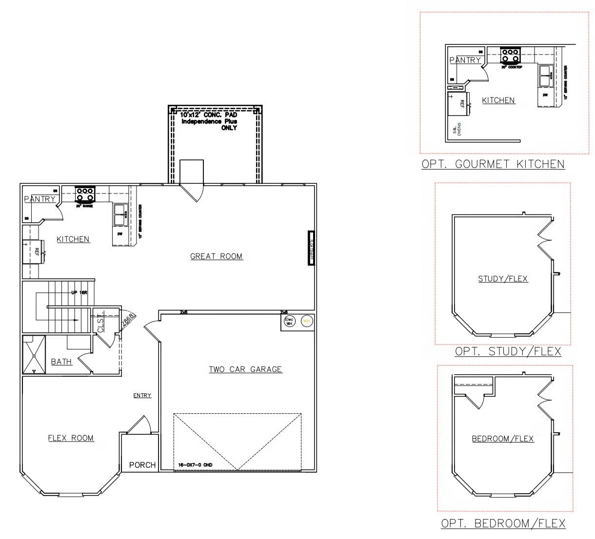
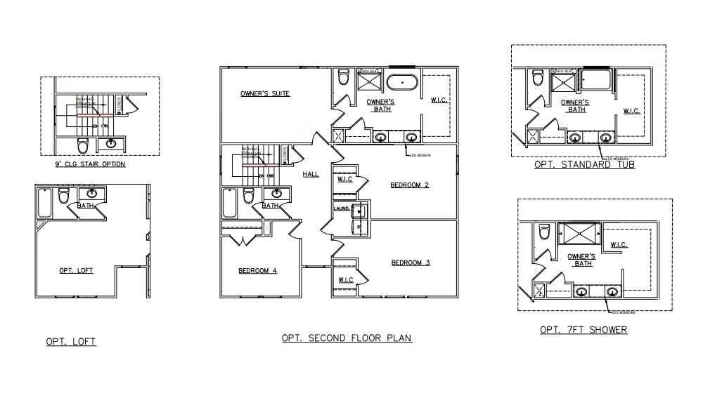
UNDER CONSTRUCTION ** INCLUDED: James Hardi Fiber Cement front, vinyl sides and rear. Vinyl floors in foyer, extended foyer, kitchen, breakfast, and family room. Kitchen comes with recessed lighting pendent lights, 42” cabinets w/crown molding, Stainless Appliance Package with glass cooktop, garbage disposal & granite counters with single bowl sink. Master bath includes tiled shower, free standing tub, dual sinks w/adult height vanity, Bluetooth LED Mirrors, granite countertops and tiled floor. Other features include: covered porch, ceiling fan in family room and owner suite, prewires in all bedrooms; Smart Home Features - Panel, Front door lock & Thermostat, Pre-wire for electric vehicle charging, and whole house blinds.

📊 Property Details

  • Property Type: Residential
  • Living Area: 2,300 sq ft
  • Lot Size: 0.17 acres
  • Garage: 2 spaces
  • Year Built: 2025

🏠 Appliances

Electric Cooktop Cooktop Dishwasher Microwave Double Oven Wall Oven

🛋️ Interior Features

Ceiling Fan(s) Attic Stairs Pulldown Fireplace Walk-In Closet(s) Ceiling - Smooth Split Bedroom Plan Walk-In Pantry

🚗 Parking & Garage

Attached Driveway Garage

🪵 Flooring

Carpet Ceramic Tile Vinyl

🌳 Lot Features

Level

📍 Property Location

Full Address: 301 Talbert Trail

City: Landrum

State: SC

ZIP Code: 29356

County: Spartanburg

Subdivision: Sherwood Gardens

🎓 School Information

Elementary School

1-O. P. Earl

Middle School

1-Landrum

High School

1-Landrum High

Information deemed reliable but not guaranteed. Courtesy of MLS Grid.

Last Updated: September 13, 2025