Property Description

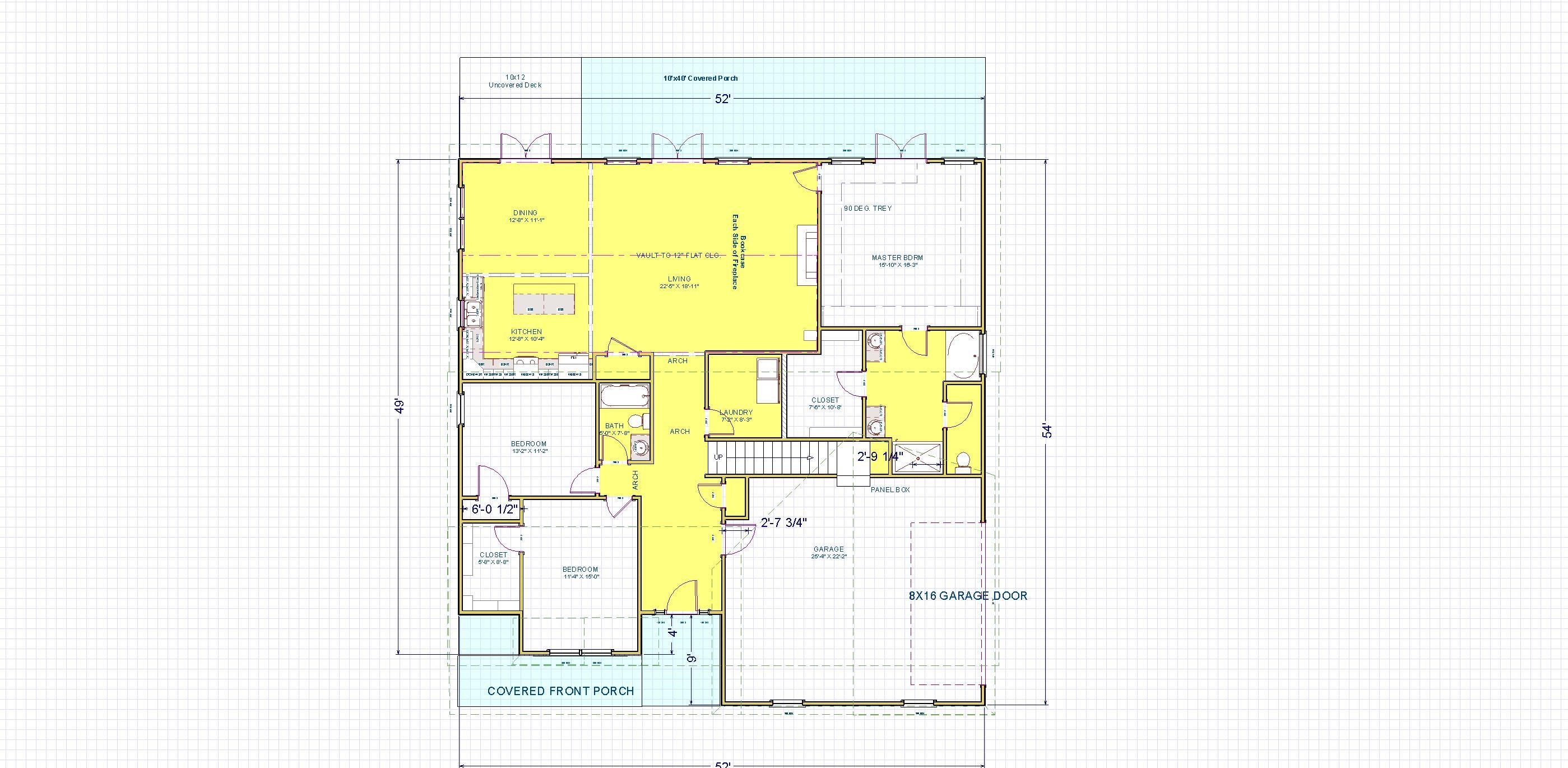
Welcome to Country Mist Farms featuring a total of 7 homesites from 3.2 - 6.5 acres. This home is to be built on lot 5 - Country Mist Farms. At this stage plans and specs can be customized. Great Equestrian property. Lot 5 features a 4 stall horse barn in place. A riding arena area has already been graded for. The Ryleigh floor plan TO BE BUILT features 3 bedrooms, 3 bathrooms and a finished room over the garage(great office or guest room). Exterior Features Fiber Cement Siding with stone accents. The covered deck is 28'x10' and has great views of the surrounding property. PROPERTY DESCRIPTION: 6.2 Acres - light restrictions - gentle rolling topography. Partial Mountain View and great views of the two private ponds.

📊 Property Details

  • Property Type: Residential
  • Living Area: 2,450 sq ft
  • Lot Size: 6.2 acres
  • Garage: 2 spaces
  • Year Built: 2025

🏠 Appliances

Dishwasher Disposal Microwave Electric Range

🛋️ Interior Features

Ceiling Fan(s) Cathedral Ceiling(s) High Ceilings Tray Ceiling(s) Fireplace Walk-In Closet(s) Ceiling - Smooth Open Floorplan Pantry

🚗 Parking & Garage

Attached Detached Detached Garage - 1-2 Car

🪵 Flooring

Laminate

🏗️ Construction

Stone Hardboard Siding

🌳 Lot Features

Level Water View Water Access Sloped

📍 Property Location

Full Address: 4941 Jug Factory Road

City: Campobello

State: SC

ZIP Code: 29322

County: Greenville

Subdivision: None

🎓 School Information

Elementary School

8-Skyland

Middle School

8-Blue Ridge

High School

8-Blue Ridge

Information deemed reliable but not guaranteed. Courtesy of MLS Grid.

Last Updated: October 01, 2025