Property Description

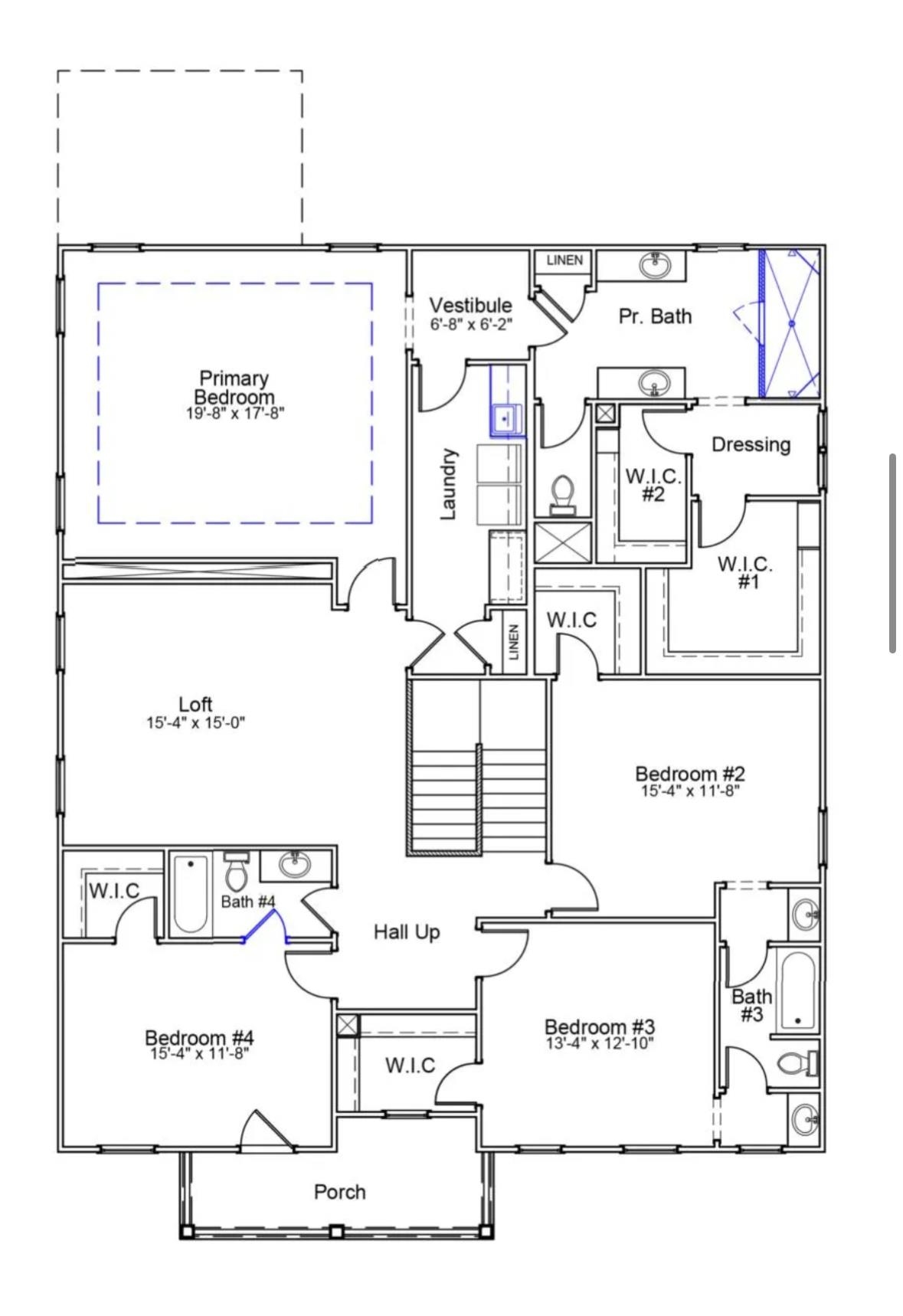
The Yates II is a two-story home with five bedrooms and four-and-one-half baths. Upon entry, you are immediately greeted by a flex room. Next, you will find the formal dining room with a coffered ceiling that leads to an open-concept great room and kitchen. A butler’s pantry connects the dining room to the kitchen. The spacious great room is open to the kitchen. The garage entry offers a functional organizational space and access to a guest bedroom with a full bath. A powder room completes the first floor. Upstairs, there are three secondary bedrooms, each featuring walk-in closets. A loft area and a large laundry room are also located on the second floor. The luxurious primary suite features a boxed ceiling and dual closets with a dressing area. This home also includes a side-entry two-car garage. Nestled close by the desirable town of Reidville, this thoughtfully designed community offers 51 spacious homesites of half an acre or more, providing ample room for outdoor living, privacy, and relaxation. With home designs ranging from 1,600 to 4,000 square feet, Ben’s Crossing caters to a variety of lifestyles, from growing families to those looking for a peaceful retreat with extra space. Future amenities—including a cabana, playground, and pickleball courts—will enhance the community’s charm, fostering an active and welcoming environment. Ideally situated between Downtown Spartanburg and Downtown Greenville, residents enjoy easy access to both cities' dining, shopping, and entertainment, as well as major employment centers.

📊 Property Details

  • Property Type: Residential
  • Living Area: 4,009 sq ft
  • Lot Size: 0.57 acres
  • Garage: 2 spaces
  • Year Built: 2025

🏠 Appliances

Gas Cooktop Dishwasher Disposal

🛋️ Interior Features

Cable Available High Ceilings Walk-In Closet(s) Ceiling - Smooth Solid Surface Counters Coffered Ceiling(s)

🚗 Parking & Garage

2 Car Attached Garage Faces Side

🌡️ Heating & Cooling

Central Air Forced Air

🪵 Flooring

Carpet Ceramic Tile Luxury Vinyl

🏗️ Construction

HardiPlank Type

🌳 Lot Features

Level Underground Utilities

📍 Property Location

Full Address: 217 Castlebar St. Street

City: Woodruff

State: SC

ZIP Code: 29388

County: Spartanburg

Subdivision: Ben's Crossing

🎓 School Information

Elementary School

5-Reidville

Middle School

5-Aber Creek Middle

High School

5-Byrnes High

Information deemed reliable but not guaranteed. Courtesy of MLS Grid.

Last Updated: November 09, 2025