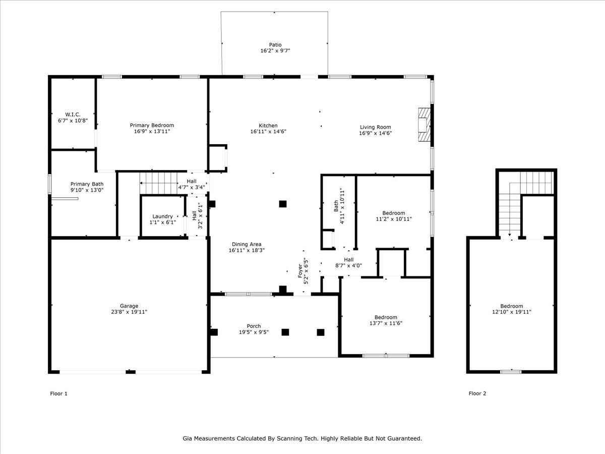
Property Description

Stunning craftsman style home, recently built in 2017, in highly desirable Saddlers Walk neighborhood. Great location close to award winning District 2 schools & within 2 miles of Lake Blalockโ€ฆone of Spartanburgโ€™s best recreation lakes! Home is filled with architectural detail throughout including cedar shake siding, board & baton, brick, stone & craftsman shutters, high ceilings, coffered ceilings, trey ceilings, stone-wrapped columns, & arched entrances. Main floor features large dining room, spacious family room with vaulted ceilings & stone fireplace, nice kitchen with island & barstool seating, pantry, & laundry room. There are two bedrooms on main floor which share a hall bathroom, and a separate primary ownerโ€™s suite with walk-in closet & spa-like bathroom with double vanity, huge walk-in shower, & garden tub. The second floor features an additional room with walk-in closet, which is ideal space for the 4th bedroom, home office, recreation room, or media room. Great outdoor space offers beautiful landscaping, charming front porch, covered back patio, stone fire pit & gathering space, and large fenced-in backyard with good privacy. Truly a wonderful space to entertain family & friends! Backyard also has detached storage building which will stay with the property. Nice sized two car garage with additional storage. Such a great opportunity in a fantastic location!

๐Ÿ“Š Property Details

  • Property Type: Residential
  • Living Area: 2,100 sq ft
  • Lot Size: 0.5 acres
  • Garage: 2 spaces
  • Year Built: 2017

๐Ÿ’ฐ Financial Information

  • Annual Taxes: $2,421
  • Tax Year: 2024

๐Ÿ  Appliances

Dishwasher Disposal Microwave Range

๐Ÿ›‹๏ธ Interior Features

Ceiling Fan(s) Cable Available Cathedral Ceiling(s) High Ceilings Tray Ceiling(s) Fireplace Walk-In Closet(s) Soaking Tub Ceiling - Smooth Solid Surface Counters Open Floorplan Split Bedroom Plan Coffered Ceiling(s) Pantry

๐Ÿš— Parking & Garage

Attached Driveway Garage

๐ŸŒก๏ธ Heating & Cooling

Heat Pump Heat Pump

๐Ÿชต Flooring

Carpet Ceramic Tile Hardwood

๐Ÿ—๏ธ Construction

Brick Veneer Stone Wood Siding

๐ŸŒณ Lot Features

Fenced Yard

๐Ÿ“ Property Location

Full Address: 331 Saddlers Run

City: Chesnee

State: SC

ZIP Code: 29323

County: Spartanburg

Subdivision: Saddlers Walk

๐ŸŽ“ School Information

Elementary School

2-Carlisle

Middle School

2-Rainbow Lake Middle School

High School

2-Boiling Springs

Information deemed reliable but not guaranteed. Courtesy of MLS Grid.

Last Updated: November 04, 2025