Property Description

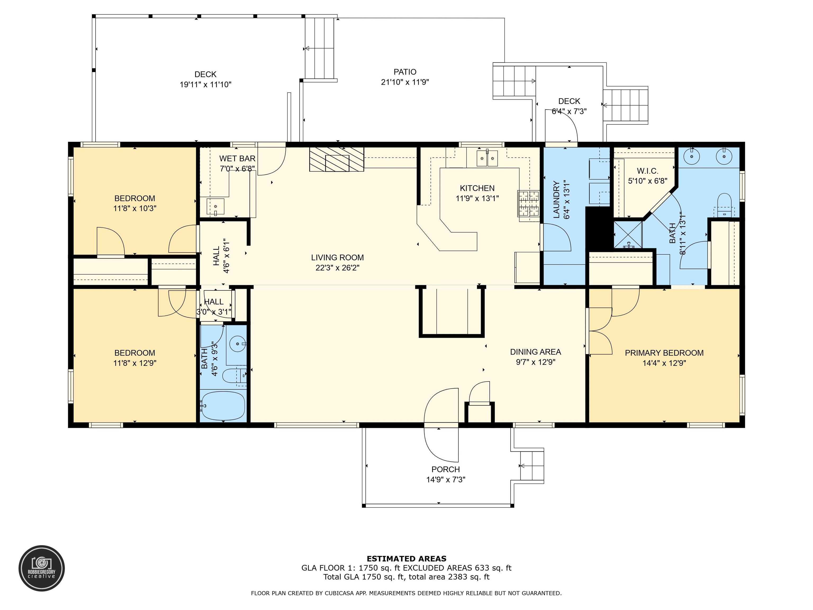
Welcome to 199 Rocky Creek Rd where quiet country living meets pure outdoor enjoyment. This de-titled 3 bed, 2 bath double wide mobile home on .96 acres of well maintained land is a rare find. It has 1680 square feet of living space, a large patio/ deck to enjoy those great summer evenings. It also has 2 outbuildings, one of which has electricity. Inside the home you will find 3 nice size bedrooms and 2 baths, one of which was recently installed. A new walk in closet was added in the master as well. The large living area has a gas fireplace, and built in cabinets making a great place to play games or read a book by the fire. The kitchen is open to the dining area and also boasts cozy breakfast nook. Plenty of cabinets for storage. Other recent upgrades include new gutters and landscaping. There is a separate laundry room and the washer/ dryer will remain (as is condition). There is no HOA. Appraisal done on 04/25/25 available on request and list price is well below appraisal. Home will be sold as is. We currently have a mortgage lender ready and willing to provide financing, ask agent for more details. Don't miss you chance to own this well maintained property.

📊 Property Details

  • Property Type: Residential
  • Living Area: 1,680 sq ft
  • Lot Size: 0.96 acres
  • Year Built: 1989

💰 Financial Information

  • Annual Taxes: $196
  • Tax Year: 2024

🏠 Appliances

Gas Cooktop Dishwasher Disposal Dryer Gas Oven Self Cleaning Oven Gas Range Free-Standing Range Refrigerator Washer

🛋️ Interior Features

Ceiling Fan(s) Cable Available Fireplace Walk-In Closet(s) Ceiling - Blown Laminate Counters Bookcases Open Floorplan Pantry

🌡️ Heating & Cooling

Central Air Heat Pump

🪵 Flooring

Carpet Parquet Vinyl

🏗️ Construction

Vinyl Siding

🌳 Lot Features

Corner Lot

📍 Property Location

Full Address: 199 Rocky Creek Drive

City: Inman

State: SC

ZIP Code: 29349

County: Spartanburg

Subdivision: None

🎓 School Information

Elementary School

1-Inman Elementary

Middle School

1-T. E. Mabry Jr High

High School

1-Chapman High

Information deemed reliable but not guaranteed. Courtesy of MLS Grid.

Last Updated: October 01, 2025