Property Description

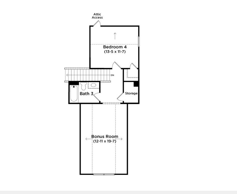
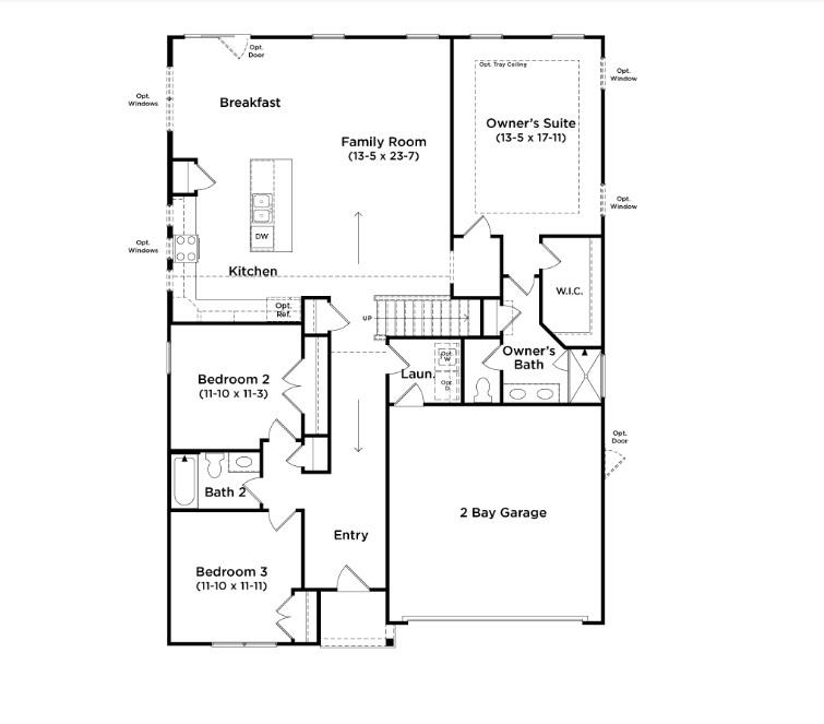
Proposed Construction Opportunity! Customize the home by visiting the design center to pick colors and options. Price listed is baseprice before options are added. Welcome to Fox Hollow! Elegant tree-lined living in a premier school disctrict with the best of Spartanburg nearby. The Craftsman style Cooper home is perfect for those wanting main floor living! Entering the home from your covered front porch you have two bedrooms and full bath adjacent to the entry hall. You could also have a dedicated office space or formal dining room in lieu of one of the bedrooms. The kitchen is a chefs dream with beautiful cabinetry in the color of your choice, Quartz or granite countertops, center island with sink for extra prep space and additional seating, stainless steel gas appliances and options such as tiled backsplash and under cabinet lighting. The large living room is perfect for entertaining and features high ceilings, tall windows for lots of natural light and an optional gas fireplace. Off the breakfast room is the outdoor patio which you could transform into a covered porch or screened in porch. The Primary Suite is situated off the living room and features double vanities, generous walk in closet and step in shower or you can upgrade to a tiled shower or Roman shower with double showerheads. Upstairs you can have an additional bedroom and full bath, large multi use room or both. Smart home technology, energy-efficient construction, and a dedicated local warranty team ensure lasting convenience and comfort. New single-family homes in Spartanburg, SC. Centrally located between Interstate 85 and Interstate 26. With large wooded homesites experience a private lifestyle with convenient access nearby recreation including lakes, golf courses, mountains, downtown areas, and parks. The entirety of the upstate is under 5 miles away with both I-26 and I-85 nearby. Spartanburg district 6 schools, less than 2 miles from Fairforest Elementary School. Only 17 minutes from GSP international Airport. Quick access to all shopping, dining and entertainment opportunities around with the Highway 29 and I-585 corridors both within 15 minutes away. Up to $28,000 in Seller Concessions that can be used towards closing cost or design center options with preferred attorney. Come by today for your personal tour and make Fox Hollow your new home!

📊 Property Details

  • Property Type: Residential
  • Living Area: 2,000 sq ft
  • Lot Size: 0.16 acres
  • Garage: 2 spaces
  • Year Built: 2025

🏠 Appliances

Range Dishwasher Disposal Gas Oven Self Cleaning Oven Microwave Gas Range

🛋️ Interior Features

Cable Available High Ceilings Attic Stairs Pulldown Walk-In Closet(s) Ceiling - Smooth Solid Surface Counters Open Floorplan Split Bedroom Plan Pantry Smart Home

🚗 Parking & Garage

Garage Door Opener 2 Car Attached

🌡️ Heating & Cooling

Central Air Forced Air

🪵 Flooring

Carpet Luxury Vinyl

🏗️ Construction

Vinyl Siding

🌳 Lot Features

Level

📍 Property Location

Full Address: 1613 Vixen Drive

City: Spartanburg

State: SC

ZIP Code: 29303

County: Spartanburg

Subdivision: Fox Hollow

🎓 School Information

Elementary School

6-Fairforest

Middle School

6-Fair Forest

High School

6-Dorman High

Information deemed reliable but not guaranteed. Courtesy of MLS Grid.

Last Updated: October 24, 2025