Property Description

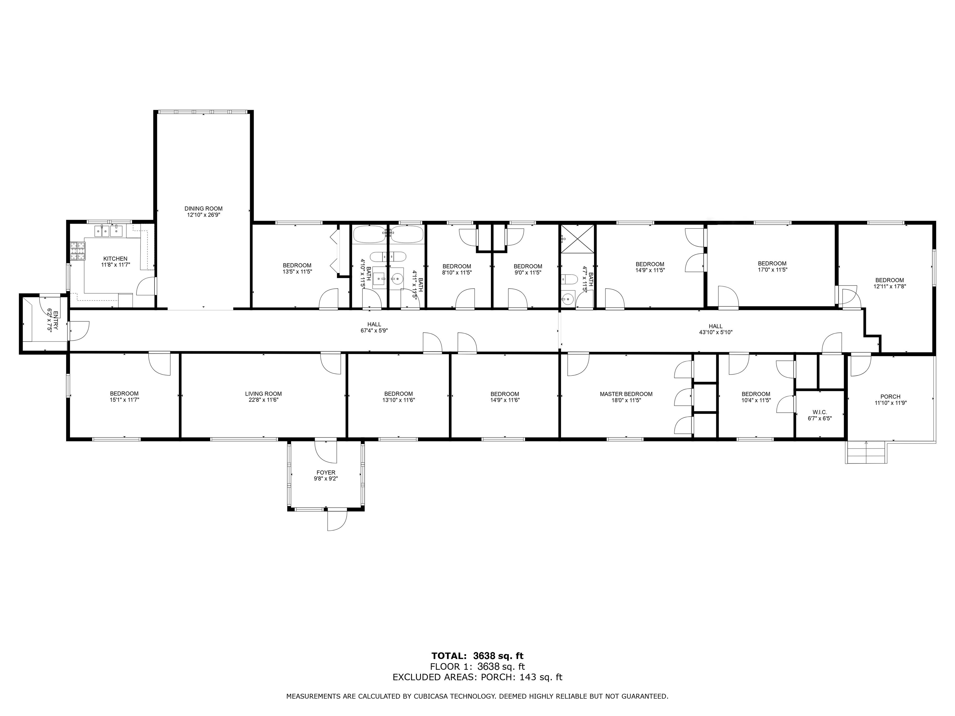
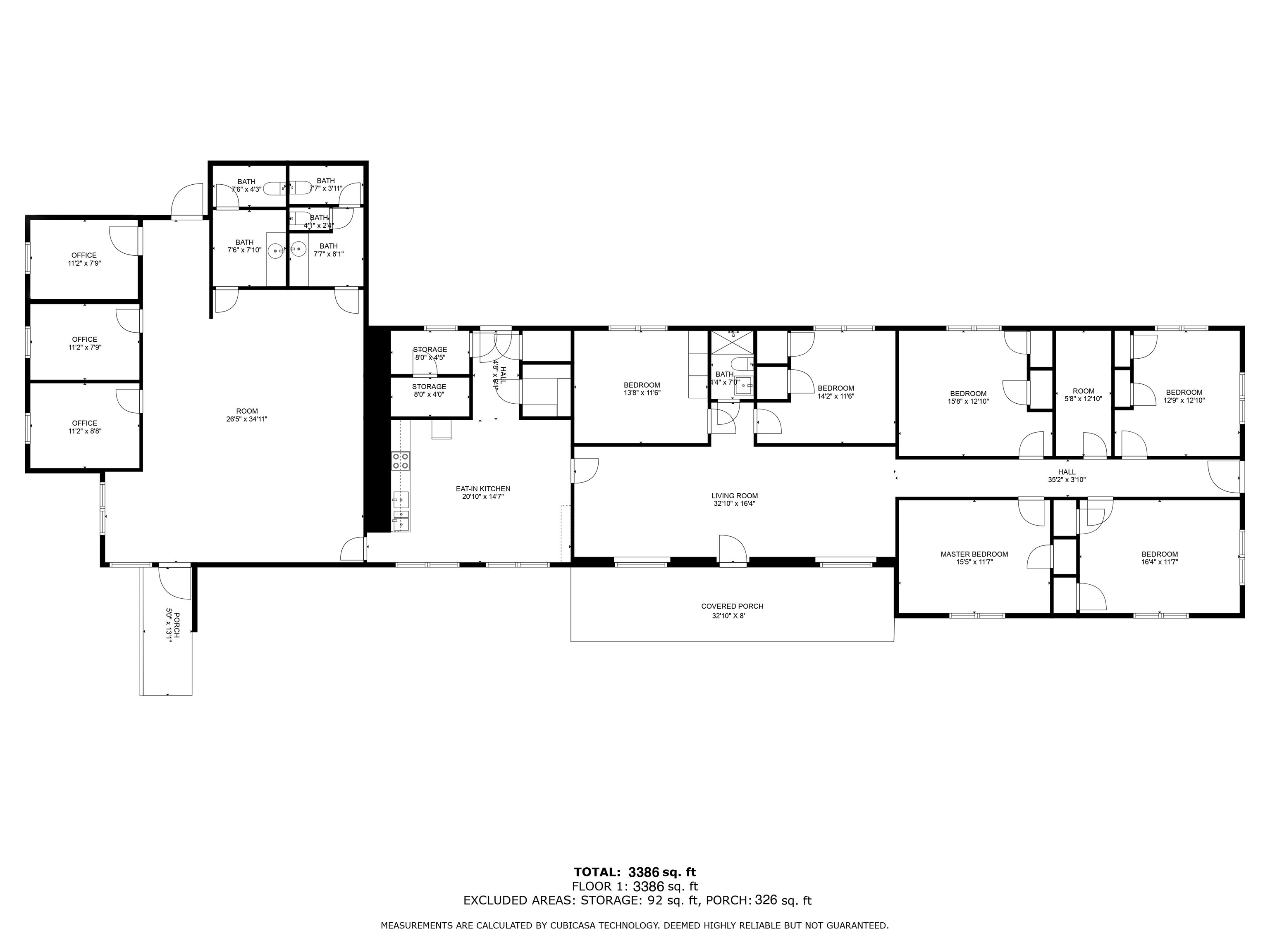
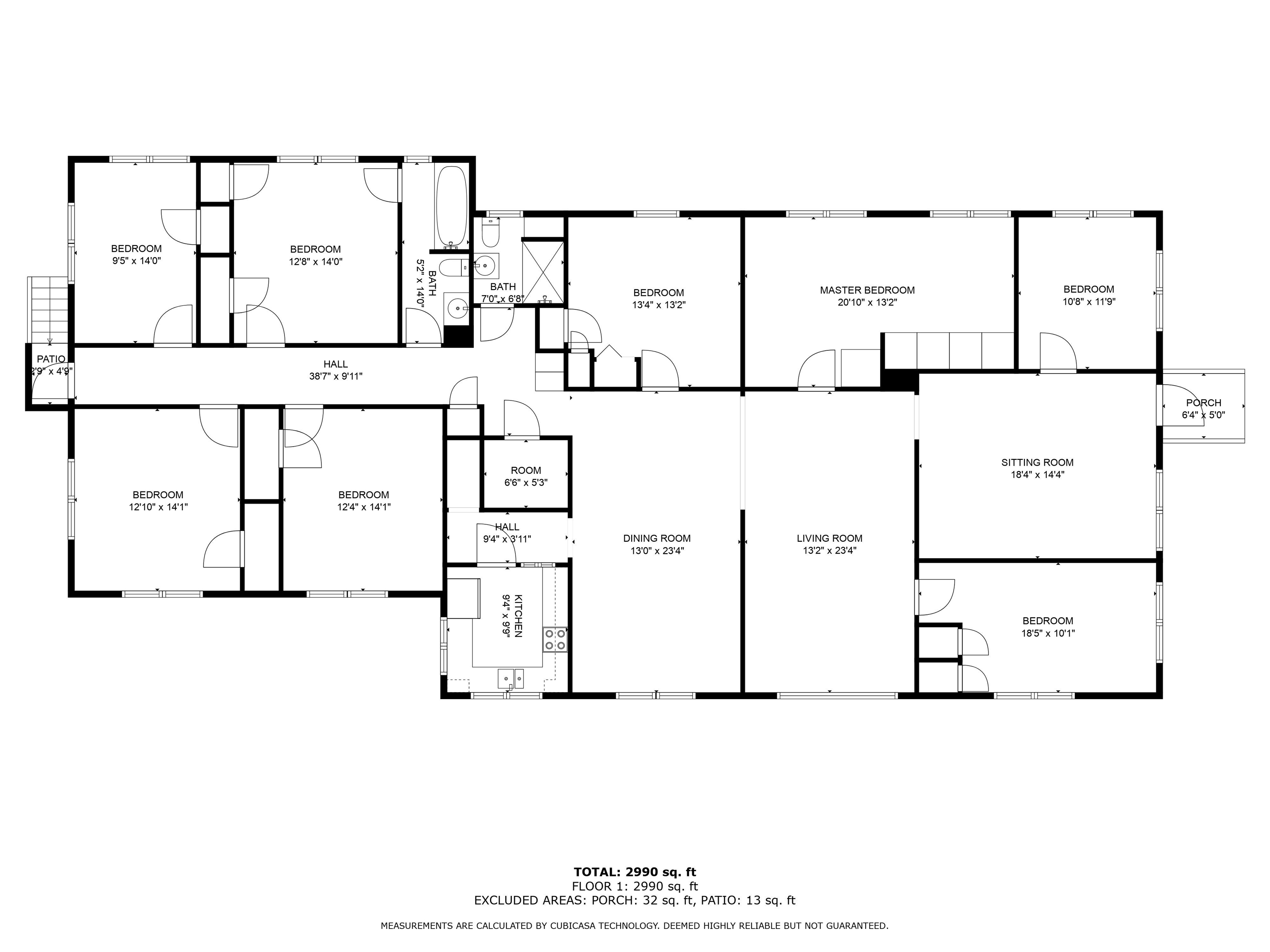
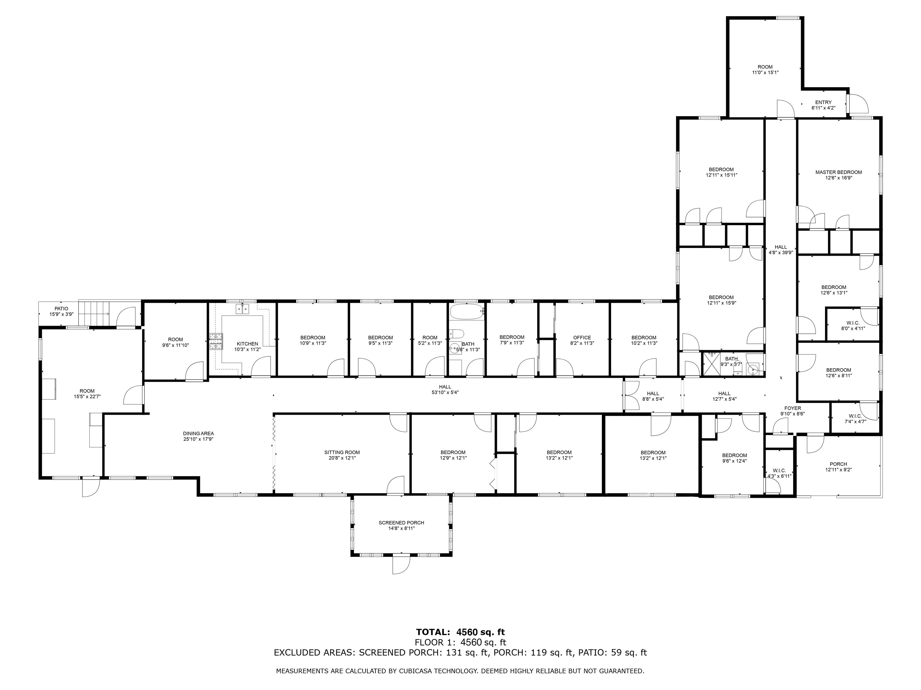
Tremendous opportunity to purchase the highly profitable Midway Residential Care Facility. With 95 beds and 5 single floor buildings set over nearly 3.5 acres of land, this facility is truly turn key ready to go income producing with staff. All beds are full and there is a wait list to get in. Well kept and maintained with ample parking space for visitors and staff. This property sits on the HWY 290 growth corridor and is less than a block away from the Reidville road intersection. Please do not visit without scheduled appointment and do not talk with staff or tenants. Call for full details, NDA required to view any financials.

📊 Property Details

  • Property Type: Commercial Sale
  • Living Area: 17,200 sq ft
  • Lot Size: 3.5 acres
  • Year Built: N/A

💰 Financial Information

  • Annual Taxes: $24,454
  • Tax Year: 2023

🌡️ Heating & Cooling

Central Air Forced Air

🪵 Flooring

Carpet Vinyl Wood

🏗️ Construction

See Remarks

📍 Property Location

Full Address: 4026 Moore Duncan

City: Moore

State: SC

ZIP Code: 29369-9774

County: Spartanburg, SC

Information deemed reliable but not guaranteed. Courtesy of MLS Grid.

Last Updated: October 01, 2025